ルフォンプログレ志村坂上101 B1階 | 2LDK | 21.4万円
セキュリティ面は、TVインターホン・オートロックなどを備え付けているので安心して暮らせます。
| 賃料 | 21.4万円 | 管理費・共益費 | 2万円 |
|---|---|---|---|
| 敷金/礼金 | 1ヶ月 / なし | 専有面積 | 55.42m² |
| 間取り | 2LDK | 階建 | B1階/8階建(B1階) |
360度パノラマ
ルフォンプログレ志村坂上101の詳細
| 物件種別 | マンション | ||
|---|---|---|---|
| 賃料 | 21.4万円 | 管理費・共益費 | 2万円 |
| 敷金/保証金 | 1ヶ月 / - | 礼金/償却・敷引 | なし / - |
| 更新料 | 1ヶ月 | ||
| その他費用 | - | ||
| 所在地 | 東京都板橋区志村3丁目1-22 | ||
| 交通 | |||
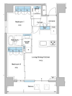
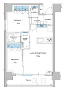
| 間取り | 2LDK | 間取り内訳 |
洋室 6 畳 LDK 14 畳 洋室 5.2 畳 |
| 専有面積 | 55.42m² | バルコニー面積 | |
| 築年月(築年数) | 2024年10月(築1年) | 方位 | 南西 |
| 建物構造 | RC(鉄筋コンクリート) | 所在階/階建 | B1階/8階建(B1階) |
| 総戸数 | 79戸 | 駐車場 | 空有1台/-27,500円 |
| 保険料 | 要 18,000円 2年 | 契約期間 | 2年間 |
| 現況(予定年月) | 即時 | ||
| 管理 | |||
| 設備・条件 | システムキッチン、カウンターキッチン、バス・トイレ別、温水洗浄便座、浴室乾燥機、室内洗濯機置き場、フローリング、エアコン、バルコニー、即入居可、礼金なし、ペット相談、360°パノラマ有り、インターネット対応、BSアンテナ、CSアンテナ、CATV、オートロック、TVドアホン、宅配ボックス、バイク置き場、駐輪場、エレベータ、都市ガス | ||
| 備考 | ★個人契約限定:礼金0ヶ月(違約金あり)★法人契約の場合は礼金1ヶ月(違約金なし)。ペット飼育時:敷金2ヶ月 | ||
| 周辺施設 |
コンビニ距離127m、スーパー距離322m、病院距離869m |
||
| 物件番号 | 996472 | 取引態様 | 仲介 |
| 情報更新日 | 2026年03月06日 | ||
| 物件番号 | |||
敷金・礼金・家賃・入居時期時期など、何でもご相談ください!
JR山手線・巣鴨駅から徒歩1分!
ハウス・トゥ・ハウス巣鴨店で元気にお待ちしております!







