グローリオシェルト駒込101 1階 | 1LDK | 14.3万円
「グローリオシェルト駒込」のここがイチオシ。室内設備はエアコン・ネット使用料不要・BSなど豊富に揃っ
| 賃料 | 14.3万円 | 管理費・共益費 | 1万円 |
|---|---|---|---|
| 敷金/礼金 | 1ヶ月 / 1ヶ月 | 専有面積 | 30.18m² |
| 間取り | 1LDK | 階建 | 1階/5階建 |
グローリオシェルト駒込101の詳細
| 物件種別 | マンション | ||
|---|---|---|---|
| 賃料 | 14.3万円 | 管理費・共益費 | 1万円 |
| 敷金/保証金 | 1ヶ月 / - | 礼金/償却・敷引 | 1ヶ月 / - |
| 更新料 | 1ヶ月 | ||
| その他費用 |
プレミアムデスク:22,000円 鍵交換費用:38,500円 |
||
| 所在地 | 東京都北区中里2丁目12-6 | ||
| 交通 |
JR京浜東北・根岸線「上中里駅」 徒歩14分 |
||
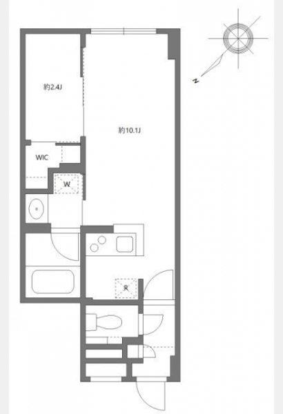
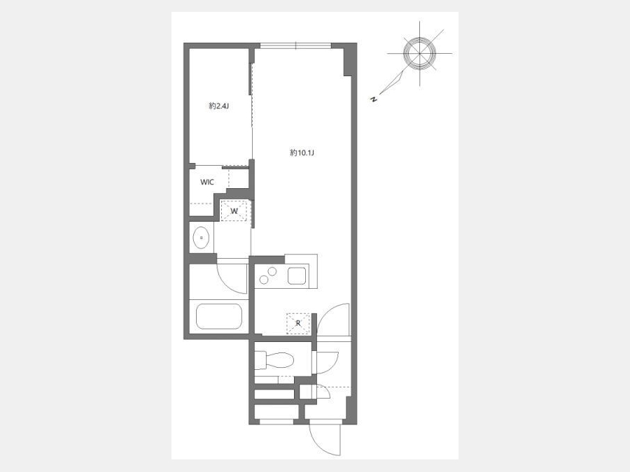
| 間取り | 1LDK | 間取り内訳 |
洋室 10.1 畳 1 室 洋室 2.4 畳 1 室 |
| 専有面積 | 30.18m² | バルコニー面積 | |
| 築年月(築年数) | 2024年07月(築1年) | 方位 | 南東 |
| 建物構造 | RC(鉄筋コンクリート) | 所在階/階建 | 1階/5階建 |
| 総戸数 | - | 駐車場 | |
| 保険料 | 要 20,000円 2年 | 契約期間 | 2年間 |
| 現況(予定年月) | 2026年02月下旬 | ||
| 管理 | |||
| 設備・条件 | 1階、角部屋、システムキッチン、バス・トイレ別、温水洗浄便座、浴室乾燥機、室内洗濯機置き場、フローリング、エアコン、ウォークインクローゼット、ペット相談、インターネット対応、BSアンテナ、CSアンテナ、オートロック、TVドアホン、防犯カメラ、宅配ボックス、エレベータ、都市ガス | ||
| 備考 | 解約予告2ヶ月前 短期解約違約金有 ペット相談可 | ||
| 周辺施設 |
コンビニ距離129m、スーパー距離70m、病院距離1,092m |
||
| 物件番号 | 977851 | 取引態様 | 仲介 |
| 情報更新日 | 2026年01月21日 | ||
| 物件番号 | |||
敷金・礼金・家賃・入居時期時期など、何でもご相談ください!
山手線・東京メトロ南北線沿線でのお部屋探しなら
当店にお任せください!
ハウス・トゥ・ハウス駒込店で元気にお待ちしております!







