コンフォリア・リヴ板橋808 8階 | 3LDK | 25.6万円
暮らしに便利なコープみらい コープ板橋駅前店(スーパー)がこちらから211mのところにあります。共用
| 賃料 | 25.6万円 | 管理費・共益費 | 1.5万円 |
|---|---|---|---|
| 敷金/礼金 | 1ヶ月 / なし | 専有面積 | 56.15m² |
| 間取り | 3LDK | 階建 | 8階/14階建 |
コンフォリア・リヴ板橋808の詳細
| 物件種別 | マンション | ||
|---|---|---|---|
| 賃料 | 25.6万円 | 管理費・共益費 | 1.5万円 |
| 敷金/保証金 | 1ヶ月 / - | 礼金/償却・敷引 | なし / - |
| 更新料 | 1ヶ月 | ||
| その他費用 |
鍵交換費用:33,000円 室内清掃費用:86,240円 |
||
| 所在地 | 東京都板橋区板橋1丁目51-5 | ||
| 交通 | |||
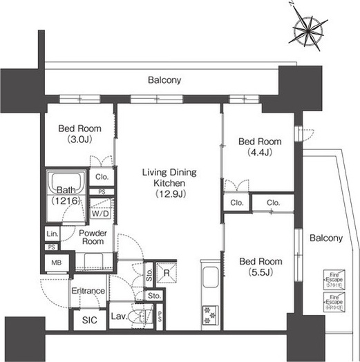
| 間取り | 3LDK | 間取り内訳 |
LDK 12.9 畳 1 室 洋室 5.5 畳 1 室 洋室 4.4 畳 1 室 洋室 3 畳 1 室 |
| 専有面積 | 56.15m² | バルコニー面積 | |
| 築年月(築年数) | 2024年09月(築1年) | 方位 | 南東 |
| 建物構造 | RC(鉄筋コンクリート) | 所在階/階建 | 8階/14階建 |
| 総戸数 | 112戸 | 駐車場 |
無 要空確認。 |
| 保険料 | 要 16,550円 2年 | 契約期間 | 2年間 |
| 現況(予定年月) | 2026年04月中旬 | ||
| 管理 | |||
| 設備・条件 | 2階以上、角部屋、システムキッチン、バス・トイレ別、温水洗浄便座、浴室乾燥機、追い焚き、室内洗濯機置き場、フローリング、エアコン、床下収納、バルコニー、礼金なし、保証人不要、ペット相談、2人入居相談、インターネット対応、BSアンテナ、CSアンテナ、オートロック、TVドアホン、防犯カメラ、宅配ボックス、バイク置き場、駐輪場、エレベータ、都市ガス | ||
| 備考 | ペット飼育は敷金1ヶ月増(小型犬1匹または猫2匹まで)。短期解約違約金:1年以内は総賃料の1ヶ月分。つなぐネット限定で使用料が無料。退去時、清掃費86240円、エアコン清掃費33000円がかかります。駐車場44000円/月、敷金1ヶ月。バイク置場6600円/月、敷金1ヶ月。駐輪場無料、1住戸1台まで。 | ||
| 周辺施設 |
コンビニ距離7m、スーパー距離211m、病院距離188m |
||
| 物件番号 | 1003975 | 取引態様 | 仲介 |
| 情報更新日 | 2026年03月15日 | ||
| 物件番号 | |||
敷金・礼金・家賃・入居時期時期など、何でもご相談ください!
3路線3駅利用可の板橋エリアでお部屋探し♪
ハウス・トゥ・ハウス板橋東口店で元気にお待ちしております!







