ガリシア板橋305 3階 | 1K | 11.5万円
歩いて7分のところに板橋警察署 平尾交番があります。収納はシューズボックス・クロゼットなどが備え付け
| 賃料 | 11.5万円 | 管理費・共益費 | 1.3万円 |
|---|---|---|---|
| 敷金/礼金 | 1ヶ月 / 1ヶ月 | 専有面積 | 25.90m² |
| 間取り | 1K | 階建 | 3階/5階建 |
ガリシア板橋305の詳細
| 物件種別 | マンション | ||
|---|---|---|---|
| 賃料 | 11.5万円 | 管理費・共益費 | 1.3万円 |
| 敷金/保証金 | 1ヶ月 / - | 礼金/償却・敷引 | 1ヶ月 / - |
| 更新料 | 1ヶ月 | ||
| その他費用 | 鍵交換費用:38,500円 | ||
| 所在地 | 東京都板橋区板橋4丁目30-6 | ||
| 交通 | |||
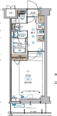
| 間取り | 1K | 間取り内訳 |
洋室 8 畳 1 室 K 1 室 |
| 専有面積 | 25.90m² | バルコニー面積 | 3.36m² |
| 築年月(築年数) | 2024年06月(築1年) | 方位 | 北西 |
| 建物構造 | RC(鉄筋コンクリート) | 所在階/階建 | 3階/5階建 |
| 総戸数 | - | 駐車場 | |
| 保険料 | 要 | 契約期間 | 2年間 |
| 現況(予定年月) | 2026年01月中旬 | ||
| 管理 | |||
| 設備・条件 | 2階以上、システムキッチン、バス・トイレ別、温水洗浄便座、浴室乾燥機、室内洗濯機置き場、フローリング、エアコン、バルコニー、分譲賃貸、2人入居相談、インターネット対応、BSアンテナ、CSアンテナ、オートロック、TVドアホン、防犯カメラ、バイク置き場、駐輪場、エレベータ、デザイナーズ | ||
| 備考 | BRIプライムプラス2530円(月額) 更新事務手数料:新賃料の0.5ヶ月。退去前のお部屋は先行契約となります。 | ||
| 周辺施設 |
コンビニ距離188m、スーパー距離211m、病院距離224m |
||
| 物件番号 | 946586 | 取引態様 | 仲介 |
| 情報更新日 | 2025年12月25日 | ||
| 物件番号 | |||
敷金・礼金・家賃・入居時期時期など、何でもご相談ください!
埼玉県への玄関口・川口でお部屋探し♪
ハウス・トゥ・ハウス川口店で元気にお待ちしております!







