野口荘1 1階 | 3K | 8.5万円
1フロア2住戸・2面採光の明るいお部屋♪
| 賃料 | 8.5万円 | 管理費・共益費 | なし |
|---|---|---|---|
| 敷金/礼金 | 1ヶ月 / なし | 専有面積 | 39.18m² |
| 間取り | 3K | 階建 | 1階/2階建 |
野口荘1の詳細
| 物件種別 | アパート | ||
|---|---|---|---|
| 賃料 | 8.5万円 | 管理費・共益費 | なし |
| 敷金/保証金 | 1ヶ月 / - | 礼金/償却・敷引 | なし / - |
| 更新料 | - | ||
| その他費用 | - | ||
| 所在地 | 東京都荒川区荒川3丁目10-3 | ||
| 交通 | |||
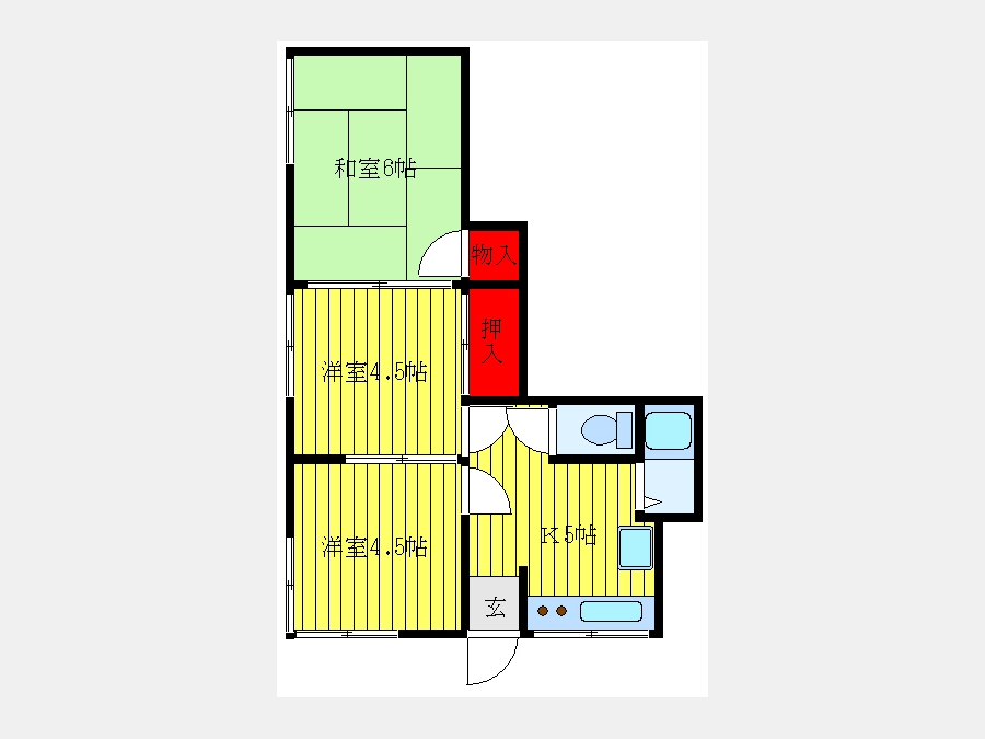
| 間取り | 3K | 間取り内訳 |
洋室 6 畳 洋室 4.5 畳 洋室 4.5 畳 K 5 畳 |
| 専有面積 | 39.18m² | バルコニー面積 | |
| 築年月(築年数) | 1965年04月(築60年) | 方位 | - |
| 建物構造 | 木造 | 所在階/階建 | 1階/2階建 |
| 総戸数 | - | 駐車場 | |
| 保険料 | 要 | 契約期間 | 2年間 |
| 現況(予定年月) | 2025年02月上旬 | ||
| 管理 | |||
| 設備・条件 | 1階、バス・トイレ別、室内洗濯機置き場、フローリング、エアコン、都市ガス | ||
| 備考 | ■更新事務手数料16500円 ■敷金1ヶ月償却 | ||
| 周辺施設 |
コンビニ距離519m、スーパー距離232m、病院距離193m |
||
| 物件番号 | 756802 | 取引態様 | 専任 |
| 情報更新日 | 2026年02月04日 | ||
| 物件番号 | |||
敷金・礼金・家賃・入居時期時期など、何でもご相談ください!
歴史と情緒が薫る街・西日暮里でお部屋探し♪
ハウス・トゥ・ハウス西日暮里店で元気にお待ちしております!







