ザ・パークハビオ目白タワー 1505 15階 | 1DK | 16.3万円
日々の暮らしに便利なマルマンストア 椎名町店(スーパー)まで5分で行けます。共用部には宅配ボックス・
| 賃料 | 16.3万円 | 管理費・共益費 | 1.5万円 |
|---|---|---|---|
| 敷金/礼金 | 1ヶ月 / なし | 専有面積 | 31.92m² |
| 間取り | 1DK | 階建 | 15階/19階建 |
ザ・パークハビオ目白タワー 1505の詳細
| 物件種別 | マンション | ||
|---|---|---|---|
| 賃料 | 16.3万円 | 管理費・共益費 | 1.5万円 |
| 敷金/保証金 | 1ヶ月 / - | 礼金/償却・敷引 | なし / - |
| 更新料 | 1ヶ月 | ||
| その他費用 |
M-REALプレミアム会費:19,800円 鍵交換費用:33,000円 |
||
| 所在地 | 東京都豊島区目白5丁目19-10 | ||
| 交通 | |||
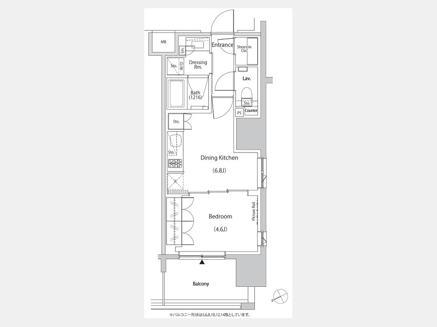
| 間取り | 1DK | 間取り内訳 |
DK 6.8 畳 1 室 洋室 4.6 畳 1 室 |
| 専有面積 | 31.92m² | バルコニー面積 | |
| 築年月(築年数) | 2024年07月(築1年) | 方位 | 東 |
| 建物構造 | RC(鉄筋コンクリート) | 所在階/階建 | 15階/19階建 |
| 総戸数 | - | 駐車場 | |
| 保険料 | 要 32,000円 2年 | 契約期間 | 2年間 |
| 現況(予定年月) | 2026年02月上旬 | ||
| 管理 | |||
| 設備・条件 | 2階以上、システムキッチン、バス・トイレ別、温水洗浄便座、浴室乾燥機、追い焚き、室内洗濯機置き場、フローリング、エアコン、バルコニー、礼金なし、ペット相談、楽器相談、事務所相談、仲介手数料無料、インターネット対応、BSアンテナ、CATV、オートロック、TVドアホン、防犯カメラ、宅配ボックス、バイク置き場、駐輪場、エレベータ、都市ガス | ||
| 備考 | 1年未満解約時賃料等1ケ月分の違約金あり。 退去時清掃費用実費。 大手法人保証会社不要(敷金1ヶ月増)。 ペットSOHO敷金1ヶ月増。 駐車場は要問合せ。 2026年1月末契約分まで礼金0ヶ月。 | ||
| 周辺施設 |
コンビニ距離192m、スーパー距離378m、病院距離511m |
||
| 物件番号 | 972344 | 取引態様 | 仲介 |
| 情報更新日 | 2026年01月13日 | ||
| 物件番号 | |||
敷金・礼金・家賃・入居時期時期など、何でもご相談ください!
池袋まで埼京線で5分というアクセス利便性が魅力★
ハウス・トゥ・ハウス板橋店で元気にお待ちしております!







