コンフォリア東上野308 3階 | 1R | 13.8万円
複数沿線利用可能で通勤通学に便利♪
| 賃料 | 13.8万円 | 管理費・共益費 | 0.8万円 |
|---|---|---|---|
| 敷金/礼金 | 138,000円 / なし | 専有面積 | 25.16m² |
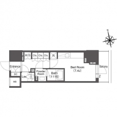
| 間取り | 1R | 階建 | 3階/15階建(B1階) |
コンフォリア東上野308の詳細
| 物件種別 | マンション | ||
|---|---|---|---|
| 賃料 | 13.8万円 | 管理費・共益費 | 0.8万円 |
| 敷金/保証金 | 138,000円 / - | 礼金/償却・敷引 | なし / - |
| 更新料 | 138,000円 | ||
| その他費用 |
鍵交換費用:33,000円 室内清掃費用:49,500円 |
||
| 所在地 | 東京都台東区東上野6丁目1-14 | ||
| 交通 | |||
| 間取り | 1R | 間取り内訳 |
洋室 7.4 畳 |
| 専有面積 | 25.16m² | バルコニー面積 | |
| 築年月(築年数) | 2024年07月(築1年) | 方位 | 東 |
| 建物構造 | RC(鉄筋コンクリート) | 所在階/階建 | 3階/15階建(B1階) |
| 総戸数 | 191戸 | 駐車場 | 無 |
| 保険料 | 要 16,550円 2年 | 契約期間 | 2年間 |
| 現況(予定年月) | 2026年04月上旬 | ||
| 管理 | |||
| 設備・条件 | 2階以上、バス・トイレ別、温水洗浄便座、浴室乾燥機、追い焚き、室内洗濯機置き場、フローリング、エアコン、バルコニー、礼金なし、保証人不要、ペット相談、インターネット対応、BSアンテナ、CSアンテナ、オートロック、TVドアホン、防犯カメラ、宅配ボックス、バイク置き場、駐輪場、エレベータ | ||
| 備考 | ペット相談可、小型犬1匹または猫2匹まで、敷金1ヶ月追加。1年未満の解約時賃料1ヶ月分の違約金あり。 | ||
| 周辺施設 |
コンビニ距離117m、スーパー距離347m、病院距離713m |
||
| 物件番号 | 994521 | 取引態様 | 仲介 |
| 情報更新日 | 2026年02月22日 | ||
| 物件番号 | |||
敷金・礼金・家賃・入居時期時期など、何でもご相談ください!
3路線3駅利用可の板橋エリアでお部屋探し♪
ハウス・トゥ・ハウス板橋東口店で元気にお待ちしております!







