建物お問い合わせ(無料)

お急ぎの方は
0120-955-165

所在地埼玉県川口市戸塚5丁目2-28 築年月1990年02月(築36年) 賃料4万円 間取り1K 専有面積16.56m²
交通埼玉高速鉄道線戸塚安行駅」 徒歩13分/JR武蔵野線東川口駅」 徒歩16分

【外観】

GoogleMapを読み込んでいます。

35.865949 139.747587

前へ 次へ
  • マップ
※ストリートビューは撮影日時の関係で、周辺環境が実際のものとは異なる場合がございます。ご了承ください。

アネックス東川口7の空室一覧(全2部屋)

問い合わせる お気に入り物件

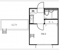
  間取り図 所在階/号室 昇順 降順
方位
間取 昇順 降順
専有面積 昇順 降順
賃料 昇順 降順
共益費
敷金
礼金
物件詳細
お気に入り
1階/102
-
1K
16.56m²
4万円
0.2万円
なし
なし
物件詳細
問い合わせる
お気に入り物件
1階/102
-
1K
16.56m²
4万円
0.2万円
なし
なし
物件詳細
問い合わせる
お気に入り物件

アネックス東川口7の詳細

物件種別 アパート
物件名 アネックス東川口7
所在地 埼玉県川口市戸塚5丁目2-28
交通
JR武蔵野線東川口駅」 徒歩16分
築年月(築年数) 1990年02月(築36年) 建物構造 木造
総戸数 - 階建 2階建 -
管理
設備・条件 インターネット対応、BSアンテナ、CATV、宅配ボックス
備考
周辺施設 コンビニ距離1,681m、スーパー距離1,531m、総合病院距離4,137m
物件番号
ハウス・トゥ・ハウスの3つのメリット
お問い合わせ
ハウピー

ハウス・トゥ・ハウス

0120-955-165

営業時間:10:00~18:30
(1月~3月は9:30~18:30)

メールでお問い合わせ

募集中部屋一覧

号室 間取り 面積 賃料
102 1K
16.56m² 4万円
102 1K
16.56m² 4万円

アネックス東川口7の最寄の店舗

南浦和店の外観画像

南浦和店

JR京浜東北線・JR武蔵野線南浦和駅東口より徒歩1分
川口店の外観画像

川口店

  • JR京浜東北線「川口」駅東口より徒歩2分

ページトップへ