URBANLINK護国寺213 1階 | 1SLDK | 22万円
お車でご案内いたします。お気軽にお問い合わせください。
| 賃料 | 22万円 | 管理費・共益費 | 1.5万円 |
|---|---|---|---|
| 敷金/礼金 | なし / なし | 専有面積 | 51.84m² |
| 間取り | 1SLDK | 階建 | 1階/6階建 |
URBANLINK護国寺213の詳細
| 物件種別 | マンション | ||
|---|---|---|---|
| 賃料 | 22万円 | 管理費・共益費 | 1.5万円 |
| 敷金/保証金 | なし / - | 礼金/償却・敷引 | なし / - |
| 更新料 | 1ヶ月 | ||
| その他費用 |
鍵交換費用:22,000円 室内清掃費用:54,890円 |
||
| 所在地 | 東京都文京区関口3丁目12-9 | ||
| 交通 | |||
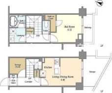
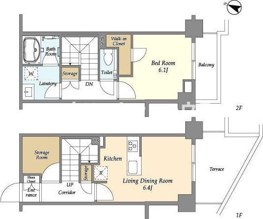
| 間取り | 1SLDK | 間取り内訳 |
LDK 8.7 畳 1 室 洋室 6.1 畳 1 室 S 2.3 畳 1 室 |
| 専有面積 | 51.84m² | バルコニー面積 | |
| 築年月(築年数) | 2024年01月(築2年) | 方位 | 南東 |
| 建物構造 | RC(鉄筋コンクリート) | 所在階/階建 | 1階/6階建 |
| 総戸数 | 121戸 | 駐車場 | 無 |
| 保険料 | 要 16,550円 2年 | 契約期間 | 2年間 |
| 現況(予定年月) | 2025年12月上旬 | ||
| 管理 | |||
| 設備・条件 | 1階、システムキッチン、バス・トイレ別、温水洗浄便座、浴室乾燥機、追い焚き、室内洗濯機置き場、メゾネット、エアコン、ウォークインクローゼット、バルコニー、礼金なし、敷金なし、保証人不要、インターネット対応、オートロック、TVドアホン、防犯カメラ、宅配ボックス、バイク置き場、駐輪場、エレベータ | ||
| 備考 | ◆退去時室内清掃費54890円(税込)◆退去時エアコン洗浄費22000円(税込)◆契約者・入居者専用会員制サービスに加入いただきます※登録無料◆貸主指定の保証会社利用必須◆2年未満の解約時は賃料等1ヶ月分の短期解約違約金あり◆浄水器カートリッジ交換費用は借主様の実費負担となります | ||
| 周辺施設 |
コンビニ距離159m、スーパー距離380m、病院距離906m |
||
| 物件番号 | 958795 | 取引態様 | 仲介 |
| 情報更新日 | 2026年01月22日 | ||
| 物件番号 | |||
敷金・礼金・家賃・入居時期時期など、何でもご相談ください!
山手線・京浜東北線の2路線が使える便利な街・田端!
ハウス・トゥ・ハウス田端店で元気にお待ちしております!







