RASIS大山‐山手通り605 6階 | 1K | 8.9万円
生乾きの洗濯物を乾かしたい時にも役立つ、お風呂場でサッと乾燥できる浴室乾燥機があります。
| 賃料 | 8.9万円 | 管理費・共益費 | 1.5万円 |
|---|---|---|---|
| 敷金/礼金 | 1ヶ月 / 1ヶ月 | 専有面積 | 24.65m² |
| 間取り | 1K | 階建 | 6階/13階建 |
RASIS大山‐山手通り605の詳細
| 物件種別 | マンション | ||
|---|---|---|---|
| 賃料 | 8.9万円 | 管理費・共益費 | 1.5万円 |
| 敷金/保証金 | 1ヶ月 / - | 礼金/償却・敷引 | 1ヶ月 / - |
| 更新料 | 1.5ヶ月 | ||
| その他費用 |
契約事務手数料:11,000円 室内抗菌処理代:17,600円 入居中サポート:21,450円 鍵交換費用:22,000円 室内清掃費用:66,000円 |
||
| 所在地 | 東京都板橋区大山金井町6-5 | ||
| 交通 | |||
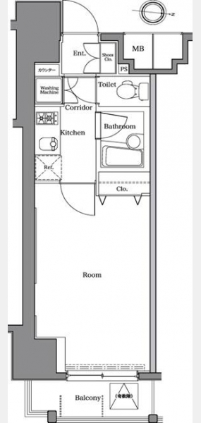
| 間取り | 1K | 間取り内訳 |
洋室 1 室 K 1 室 |
| 専有面積 | 24.65m² | バルコニー面積 | |
| 築年月(築年数) | 2008年09月(築17年) | 方位 | 東 |
| 建物構造 | RC(鉄筋コンクリート) | 所在階/階建 | 6階/13階建 |
| 総戸数 | - | 駐車場 | |
| 保険料 | 要 23,000円 2年 | 契約期間 | 2年間 |
| 現況(予定年月) | 2026年03月下旬 | ||
| 管理 | |||
| 設備・条件 | 2階以上、システムキッチン、バス・トイレ別、温水洗浄便座、浴室乾燥機、室内洗濯機置き場、フローリング、エアコン、バルコニー、分譲賃貸、ペット相談、2人入居相談、インターネット対応、BSアンテナ、CSアンテナ、CATV、オートロック、TVドアホン、宅配ボックス、バイク置き場、駐輪場、エレベータ、都市ガス | ||
| 備考 | 解約予告2ヶ月前。更新事務手数料22000円。ペット飼育時共益費3500円追加※犬・猫いずれか1匹(小型犬50cm以下、10kg以下)。指定電力案内有(契約自由)。2人入居:共益費1000円増額。短期解約違約金:1年未満は総賃料の1ヶ月分。情報と現況が異なる場合は現況を優先させていただきます。 | ||
| 周辺施設 |
コンビニ距離164m、スーパー距離248m、病院距離668m |
||
| 物件番号 | 981339 | 取引態様 | 仲介 |
| 情報更新日 | 2026年01月25日 | ||
| 物件番号 | |||
敷金・礼金・家賃・入居時期時期など、何でもご相談ください!
池袋まで埼京線で5分というアクセス利便性が魅力★
ハウス・トゥ・ハウス板橋店で元気にお待ちしております!







