ラ・ポール十条302 3階 | 1R | 5.2万円
外出時便利な宅配ボックス!
| 賃料 | 5.2万円 | 管理費・共益費 | 1万円 |
|---|---|---|---|
| 敷金/礼金 | なし / 1ヶ月 | 専有面積 | 16.61m² |
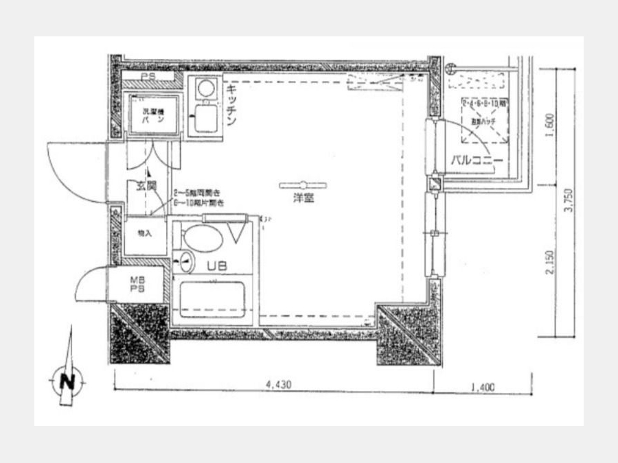
| 間取り | 1R | 階建 | 3階/10階建 |
360度パノラマ
ラ・ポール十条302の詳細
| 物件種別 | マンション | ||
|---|---|---|---|
| 賃料 | 5.2万円 | 管理費・共益費 | 1万円 |
| 敷金/保証金 | なし / - | 礼金/償却・敷引 | 1ヶ月 / - |
| 更新料 | 1.5ヶ月 | ||
| その他費用 |
預かりクリーニング費:46,200円 契約事務手数料:11,000円 24時間生活サポート:19,800円 鍵交換費用:27,500円 |
||
| 所在地 | 東京都北区上十条4丁目5-7 | ||
| 交通 | |||
| 間取り | 1R | 間取り内訳 | |
| 専有面積 | 16.61m² | バルコニー面積 | |
| 築年月(築年数) | 1991年11月(築34年) | 方位 | 東 |
| 建物構造 | SRC(鉄骨鉄筋コンクリート) | 所在階/階建 | 3階/10階建 |
| 総戸数 | - | 駐車場 | |
| 保険料 | 要 20,000円 2年 | 契約期間 | 2年間 |
| 現況(予定年月) | 2026年04月中旬 | ||
| 管理 | |||
| 設備・条件 | 2階以上、システムキッチン、室内洗濯機置き場、フローリング、エアコン、バルコニー、分譲賃貸、敷金なし、保証人不要、2人入居相談、360°パノラマ有り、CATV、光ファイバー、オートロック、TVドアホン、防犯カメラ、宅配ボックス、駐輪場、エレベータ、都市ガス | ||
| 備考 | 短期解約違約金:1年未満総賃料2ヶ月分・2年未満総賃料1ヶ月分。解約予告2ヶ月前。 | ||
| 周辺施設 |
コンビニ距離220m、スーパー距離367m、病院距離818m |
||
| 物件番号 | 980261 | 取引態様 | 仲介 |
| 情報更新日 | 2026年01月24日 | ||
| 物件番号 | |||
敷金・礼金・家賃・入居時期時期など、何でもご相談ください!
学生さんのお部屋探しも全力でバックアップ!
ハウス・トゥ・ハウス十条店で元気にお待ちしております!







