LUMEED池袋501 5階 | 1K | 11.3万円
こちらの物件はセブンイレブン 池袋4丁目店まで57mにあります。充実した1人暮らしは1Kのお部屋で始
| 賃料 | 11.3万円 | 管理費・共益費 | 0.8万円 |
|---|---|---|---|
| 敷金/礼金 | 1ヶ月 / 1ヶ月 | 専有面積 | 25.52m² |
| 間取り | 1K | 階建 | 5階/8階建 |
360度パノラマ
LUMEED池袋501の詳細
| 物件種別 | マンション | ||
|---|---|---|---|
| 賃料 | 11.3万円 | 管理費・共益費 | 0.8万円 |
| 敷金/保証金 | 1ヶ月 / - | 礼金/償却・敷引 | 1ヶ月 / - |
| 更新料 | 1ヶ月 | ||
| その他費用 |
事務管理手数料:11,000円 鍵交換費用:28,600円 |
||
| 所在地 | 東京都豊島区池袋4丁目22-14 | ||
| 交通 | |||
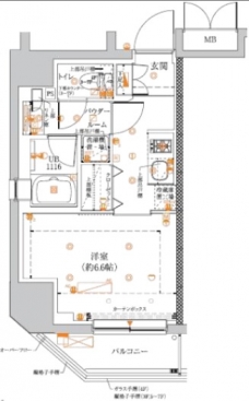
| 間取り | 1K | 間取り内訳 |
洋室 6.6 畳 |
| 専有面積 | 25.52m² | バルコニー面積 | |
| 築年月(築年数) | 2022年01月(築4年) | 方位 | 東 |
| 建物構造 | RC(鉄筋コンクリート) | 所在階/階建 | 5階/8階建 |
| 総戸数 | - | 駐車場 | |
| 保険料 | 要 15,000円 2年 | 契約期間 | 2年間 |
| 現況(予定年月) | 2026年04月下旬 | ||
| 管理 | |||
| 設備・条件 | 2階以上、角部屋、システムキッチン、バス・トイレ別、浴室乾燥機、追い焚き、室内洗濯機置き場、フローリング、エアコン、バルコニー、ペット相談、360°パノラマ有り、インターネット対応、BSアンテナ、CSアンテナ、CATV、オートロック、TVドアホン、宅配ボックス、エレベータ、都市ガス | ||
| 備考 | 解約予告2ヶ月前。 1年未満解約:違約金1ヶ月。 更新時事務手数料0.5ヶ月。 ペット飼育可(管理規約厳守)使用料:賃料1ヶ月分(償却)。 退去時:クリーニング代(4万円)+エアコン洗浄費(1.5万円)+原状回復費用=借主様負担。 | ||
| 周辺施設 |
コンビニ距離57m、スーパー距離279m、病院距離343m |
||
| 物件番号 | 986917 | 取引態様 | 仲介 |
| 情報更新日 | 2026年02月06日 | ||
| 物件番号 | |||
敷金・礼金・家賃・入居時期時期など、何でもご相談ください!
山手線・京浜東北線の2路線が使える便利な街・田端!
ハウス・トゥ・ハウス田端店で元気にお待ちしております!







