ハイムシマダ101 1階 | 1K | 7.5万円
室内設備は洗面台・バストイレ別などが揃っているので、快適に過ごしやすいお部屋になります。女性のみ入居
| 賃料 | 7.5万円 | 管理費・共益費 | 0.3万円 |
|---|---|---|---|
| 敷金/礼金 | 1ヶ月 / 1ヶ月 | 専有面積 | 20.00m² |
| 間取り | 1K | 階建 | 1階/2階建 |
ハイムシマダ101の詳細
| 物件種別 | アパート | ||
|---|---|---|---|
| 賃料 | 7.5万円 | 管理費・共益費 | 0.3万円 |
| 敷金/保証金 | 1ヶ月 / - | 礼金/償却・敷引 | 1ヶ月 / - |
| 更新料 | 1ヶ月 | ||
| その他費用 |
鍵交換費用:23,100円 室内清掃費用:52,800円 |
||
| 所在地 | 東京都豊島区目白2丁目9-5 | ||
| 交通 | |||
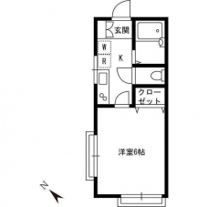
| 間取り | 1K | 間取り内訳 |
洋室 6 畳 |
| 専有面積 | 20.00m² | バルコニー面積 | |
| 築年月(築年数) | 1987年01月(築39年) | 方位 | 南西 |
| 建物構造 | 木造 | 所在階/階建 | 1階/2階建 |
| 総戸数 | - | 駐車場 | 無 |
| 保険料 | 要 22,000円 2年 | 契約期間 | 2年間 |
| 現況(予定年月) | 2026年04月中旬 | ||
| 管理 | |||
| 設備・条件 | 1階、角部屋、システムキッチン、バス・トイレ別、室内洗濯機置き場、エアコン、防犯カメラ、都市ガス | ||
| 備考 | 女性限定。審査状況によって見守りサービス(2200円/月)、24時間サポートサービス(990円/月)に加入頂く場合がございます。1年未満の解約は賃料1ヶ月分の違約金あり。 | ||
| 周辺施設 |
コンビニ距離314m、スーパー距離352m、病院距離614m |
||
| 物件番号 | 1000560 | 取引態様 | 仲介 |
| 情報更新日 | 2026年03月10日 | ||
| 物件番号 | |||
敷金・礼金・家賃・入居時期時期など、何でもご相談ください!
3路線3駅利用可の板橋エリアでお部屋探し♪
ハウス・トゥ・ハウス板橋東口店で元気にお待ちしております!







