アソシエール高島平102 1階 | 1K | 8.4万円
オートロック、TVモニターホンつきで安心
| 賃料 | 8.4万円 | 管理費・共益費 | 0.6万円 |
|---|---|---|---|
| 敷金/礼金 | 1ヶ月 / 1ヶ月 | 専有面積 | 25.00m² |
| 間取り | 1K | 階建 | 1階/4階建 |
アソシエール高島平102の詳細
| 物件種別 | マンション | ||
|---|---|---|---|
| 賃料 | 8.4万円 | 管理費・共益費 | 0.6万円 |
| 敷金/保証金 | 1ヶ月 / - | 礼金/償却・敷引 | 1ヶ月 / - |
| 更新料 | 1ヶ月 | ||
| その他費用 |
プレミアデスク:22,000円 鍵交換費用:38,500円 |
||
| 所在地 | 東京都板橋区高島平7丁目28-9 | ||
| 交通 | |||
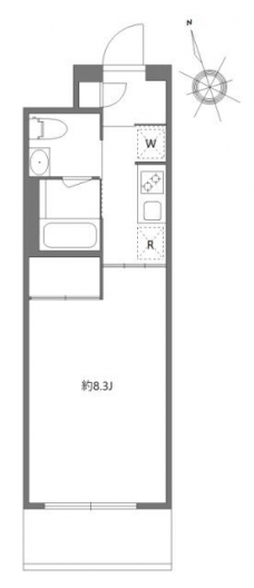
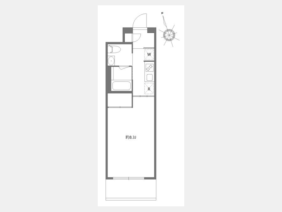
| 間取り | 1K | 間取り内訳 |
洋室 8.3 畳 |
| 専有面積 | 25.00m² | バルコニー面積 | |
| 築年月(築年数) | 2012年02月(築14年) | 方位 | 南 |
| 建物構造 | RC(鉄筋コンクリート) | 所在階/階建 | 1階/4階建 |
| 総戸数 | - | 駐車場 | |
| 保険料 | 要 20,000円 2年 | 契約期間 | 2年間 |
| 現況(予定年月) | 2026年03月下旬 | ||
| 管理 | |||
| 設備・条件 | 1階、南向き部屋、システムキッチン、バス・トイレ別、温水洗浄便座、浴室乾燥機、室内洗濯機置き場、フローリング、エアコン、バルコニー、インターネット対応、BSアンテナ、CSアンテナ、オートロック、TVドアホン、宅配ボックス、バイク置き場、駐輪場、エレベータ、都市ガス | ||
| 備考 | 1年未満の解約の場合、賃料1ヶ月分の違約金 | ||
| 周辺施設 |
コンビニ距離197m、スーパー距離466m、病院距離853m |
||
| 物件番号 | 997136 | 取引態様 | 仲介 |
| 情報更新日 | 2026年03月03日 | ||
| 物件番号 | |||
敷金・礼金・家賃・入居時期時期など、何でもご相談ください!
JR山手線・巣鴨駅から徒歩1分!
ハウス・トゥ・ハウス巣鴨店で元気にお待ちしております!







