アジールコート板橋本町605 6階 | 1LDK | 14.75万円
セキュリティ面は、TVインターホン・オートロックなどを設置しているので安全面でも優れております。荷物
| 賃料 | 14.75万円 | 管理費・共益費 | 1.2万円 |
|---|---|---|---|
| 敷金/礼金 | 1ヶ月 / 1ヶ月 | 専有面積 | 36.03m² |
| 間取り | 1LDK | 階建 | 6階/9階建 |
アジールコート板橋本町605の詳細
| 物件種別 | マンション | ||
|---|---|---|---|
| 賃料 | 14.75万円 | 管理費・共益費 | 1.2万円 |
| 敷金/保証金 | 1ヶ月 / - | 礼金/償却・敷引 | 1ヶ月 / - |
| 更新料 | 1ヶ月 | ||
| その他費用 |
プレミアデスク:22,000円 鍵交換費用:38,500円 |
||
| 所在地 | 東京都板橋区本町10-14 | ||
| 交通 | |||
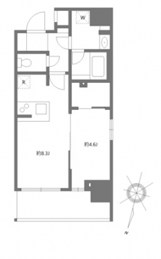
| 間取り | 1LDK | 間取り内訳 |
洋室 4.6 畳 LDK 8.3 畳 |
| 専有面積 | 36.03m² | バルコニー面積 | |
| 築年月(築年数) | 2024年02月(築2年) | 方位 | 北 |
| 建物構造 | RC(鉄筋コンクリート) | 所在階/階建 | 6階/9階建 |
| 総戸数 | - | 駐車場 | |
| 保険料 | 要 20,000円 2年 | 契約期間 | 2年間 |
| 現況(予定年月) | 2026年04月上旬 | ||
| 管理 | |||
| 設備・条件 | 2階以上、角部屋、システムキッチン、バス・トイレ別、温水洗浄便座、浴室乾燥機、室内洗濯機置き場、フローリング、エアコン、バルコニー、ペット相談、インターネット対応、BSアンテナ、CSアンテナ、CATV、オートロック、TVドアホン、宅配ボックス、駐輪場、エレベータ、都市ガス | ||
| 備考 | 短期解約違約金:1年未満1ヶ月。解約予告:2ヶ月前。宅配ボックスがあるので配達時間を気にする必要がないのでわざわざ荷物の受け取りのために時間をとる必要がなくなります。収納はシューズボックス・ウォークインクロゼットなどが備え付けられているので、衣類や日用品の収納に重宝します。バルコニーをご活用いただけます。板橋区や都営三田線板橋本町付近での楽しい暮らしがあなたを待っています。素敵なお部屋を私達と一緒に | ||
| 周辺施設 |
コンビニ距離263m、スーパー距離59m、病院距離415m |
||
| 物件番号 | 988134 | 取引態様 | 仲介 |
| 情報更新日 | 2026年02月08日 | ||
| 物件番号 | |||
敷金・礼金・家賃・入居時期時期など、何でもご相談ください!
JR山手線・巣鴨駅から徒歩1分!
ハウス・トゥ・ハウス巣鴨店で元気にお待ちしております!







