S-RESIDENCE王子Nord201 2階 | 1DK | 11.9万円
王子六丁目児童遊園まで462mです。収納はシューズボックス・クロゼットなど豊富なので、衣類や履き物
| 賃料 | 11.9万円 | 管理費・共益費 | 1万円 |
|---|---|---|---|
| 敷金/礼金 | 1ヶ月 / 1ヶ月 | 専有面積 | 25.45m² |
| 間取り | 1DK | 階建 | 2階/12階建 |
360度パノラマ
S-RESIDENCE王子Nord201の詳細
| 物件種別 | マンション | ||
|---|---|---|---|
| 賃料 | 11.9万円 | 管理費・共益費 | 1万円 |
| 敷金/保証金 | 1ヶ月 / - | 礼金/償却・敷引 | 1ヶ月 / - |
| 更新料 | 1ヶ月 | ||
| その他費用 |
鍵交換費用:33,000円 室内清掃費用:66,000円 |
||
| 所在地 | 東京都北区王子3丁目19-12 | ||
| 交通 |
JR京浜東北・根岸線「東十条駅」 徒歩14分 |
||
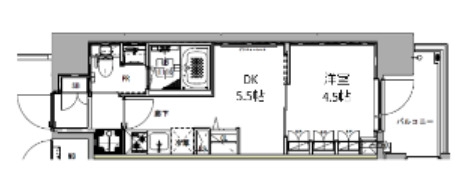
| 間取り | 1DK | 間取り内訳 |
DK 5.5 畳 洋室 4.5 畳 |
| 専有面積 | 25.45m² | バルコニー面積 | |
| 築年月(築年数) | 2024年03月(築2年) | 方位 | - |
| 建物構造 | RC(鉄筋コンクリート) | 所在階/階建 | 2階/12階建 |
| 総戸数 | - | 駐車場 |
空有-台/-27,500円 要確認 |
| 保険料 | 要 18,000円 2年 | 契約期間 | 2年間 |
| 現況(予定年月) | 2026年04月上旬 | ||
| 管理 | |||
| 設備・条件 | 2階以上、システムキッチン、バス・トイレ別、温水洗浄便座、浴室乾燥機、追い焚き、室内洗濯機置き場、フローリング、エアコン、バルコニー、保証人不要、ペット相談、360°パノラマ有り、インターネット対応、BSアンテナ、CSアンテナ、オートロック、TVドアホン、防犯カメラ、宅配ボックス、バイク置き場、駐輪場、エレベータ | ||
| 備考 | 掲載の室内写真は別タイプ他の部屋の写真です。 ペット飼育時敷金1ヶ月増額(退去時償却) 、賃料増額あり 1年未満の解約時、総賃料1ヶ月分の違約金あり。 | ||
| 周辺施設 |
コンビニ距離105m、スーパー距離633m、病院距離508m |
||
| 物件番号 | 998252 | 取引態様 | 仲介 |
| 情報更新日 | 2026年03月04日 | ||
| 物件番号 | |||
敷金・礼金・家賃・入居時期時期など、何でもご相談ください!
JR山手線・巣鴨駅から徒歩1分!
ハウス・トゥ・ハウス巣鴨店で元気にお待ちしております!







