S-RESIDENCE王子Nord1101 11階 | 2LDK | 22.3万円
王子六丁目児童遊園まで462mです。収納はシューズボックス・クロゼットなど豊富なので、衣類や履き物
| 賃料 | 22.3万円 | 管理費・共益費 | 1.5万円 |
|---|---|---|---|
| 敷金/礼金 | 1ヶ月 / 1ヶ月 | 専有面積 | 53.58m² |
| 間取り | 2LDK | 階建 | 11階/12階建 |
360度パノラマ
S-RESIDENCE王子Nord1101の詳細
| 物件種別 | マンション | ||
|---|---|---|---|
| 賃料 | 22.3万円 | 管理費・共益費 | 1.5万円 |
| 敷金/保証金 | 1ヶ月 / - | 礼金/償却・敷引 | 1ヶ月 / - |
| 更新料 | 1ヶ月 | ||
| その他費用 |
鍵交換費用:33,000円 室内清掃費用:126,500円 |
||
| 所在地 | 東京都北区王子3丁目19-12 | ||
| 交通 |
JR京浜東北・根岸線「東十条駅」 徒歩14分 |
||
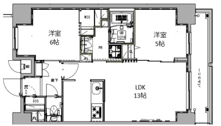
| 間取り | 2LDK | 間取り内訳 |
LDK 13 畳 洋室 6 畳 洋室 5 畳 |
| 専有面積 | 53.58m² | バルコニー面積 | |
| 築年月(築年数) | 2024年03月(築1年) | 方位 | - |
| 建物構造 | RC(鉄筋コンクリート) | 所在階/階建 | 11階/12階建 |
| 総戸数 | - | 駐車場 |
空有-台/-27,500円 要確認 |
| 保険料 | 要 22,000円 2年 | 契約期間 | 2年間 |
| 現況(予定年月) | 即時 | ||
| 管理 | |||
| 設備・条件 | 2階以上、角部屋、システムキッチン、バス・トイレ別、温水洗浄便座、浴室乾燥機、追い焚き、室内洗濯機置き場、フローリング、エアコン、バルコニー、即入居可、保証人不要、ペット相談、360°パノラマ有り、インターネット対応、BSアンテナ、CSアンテナ、オートロック、TVドアホン、防犯カメラ、宅配ボックス、バイク置き場、駐輪場、エレベータ | ||
| 備考 | ペット飼育時敷金1ヶ月増額(退去時償却) 1年未満の解約時、総賃料1ヶ月分の違約金あり。 | ||
| 周辺施設 |
コンビニ距離105m、スーパー距離633m、病院距離508m |
||
| 物件番号 | 939477 | 取引態様 | 仲介 |
| 情報更新日 | 2025年12月26日 | ||
| 物件番号 | |||
敷金・礼金・家賃・入居時期時期など、何でもご相談ください!
歴史と情緒が薫る街・西日暮里でお部屋探し♪
ハウス・トゥ・ハウス西日暮里店で元気にお待ちしております!







