アンベリール王子802 8階 | 1K | 12.4万円
ペット飼育可能!安心のオートロック付き!
| 賃料 | 12.4万円 | 管理費・共益費 | 1.5万円 |
|---|---|---|---|
| 敷金/礼金 | 1ヶ月 / 1ヶ月 | 専有面積 | 27.45m² |
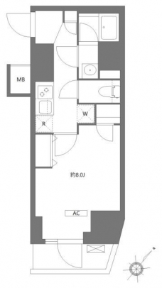
| 間取り | 1K | 階建 | 8階/13階建 |
アンベリール王子802の詳細
| 物件種別 | マンション | ||
|---|---|---|---|
| 賃料 | 12.4万円 | 管理費・共益費 | 1.5万円 |
| 敷金/保証金 | 1ヶ月 / - | 礼金/償却・敷引 | 1ヶ月 / - |
| 更新料 | 1.5ヶ月 | ||
| その他費用 |
プレミアデスク(登録料含む/2年):16,500円 鍵交換費用:38,500円 |
||
| 所在地 | 東京都北区滝野川2丁目44-2 | ||
| 交通 | |||
| 間取り | 1K | 間取り内訳 | |
| 専有面積 | 27.45m² | バルコニー面積 | |
| 築年月(築年数) | 2024年01月(築1年) | 方位 | 南東 |
| 建物構造 | RC(鉄筋コンクリート) | 所在階/階建 | 8階/13階建 |
| 総戸数 | - | 駐車場 | |
| 保険料 | 要 20,000円 2年 | 契約期間 | 2年間 |
| 現況(予定年月) | 2025年10月上旬 | ||
| 管理 | |||
| 設備・条件 | 2階以上、角部屋、システムキッチン、バス・トイレ別、温水洗浄便座、浴室乾燥機、室内洗濯機置き場、フローリング、エアコン、バルコニー、保証人不要、ペット相談、インターネット対応、BSアンテナ、CSアンテナ、オートロック、TVドアホン、防犯カメラ、宅配ボックス、エレベータ、都市ガス、デザイナーズ | ||
| 備考 | 1年未満解約の場合総賃料の2ヶ月分短期解約違約金あり。解約予告2ヶ月前。ペット飼育可能:猫または小型犬1匹まで(体重10キロまで)、礼金1か月積み増し 電子契約となっております。インターネット使用料無料。 | ||
| 周辺施設 |
コンビニ距離23m、スーパー距離420m、病院距離400m |
||
| 物件番号 | 935599 | 取引態様 | 仲介 |
| 情報更新日 | 2025年12月25日 | ||
| 物件番号 | |||
敷金・礼金・家賃・入居時期時期など、何でもご相談ください!
3路線3駅利用可の板橋エリアでお部屋探し♪
ハウス・トゥ・ハウス板橋東口店で元気にお待ちしております!







