セーコー第2コーポ202 2階 | 2LDK | 11.5万円
角部屋・3面採光です!
| 賃料 | 11.5万円 | 管理費・共益費 | 0.3万円 |
|---|---|---|---|
| 敷金/礼金 | 1ヶ月 / 1ヶ月 | 専有面積 | 48.50m² |
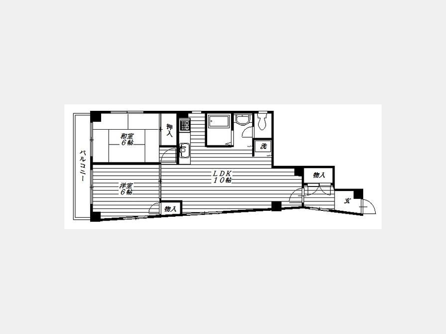
| 間取り | 2LDK | 階建 | 2階/5階建 |
セーコー第2コーポ202の詳細
| 物件種別 | マンション | ||
|---|---|---|---|
| 賃料 | 11.5万円 | 管理費・共益費 | 0.3万円 |
| 敷金/保証金 | 1ヶ月 / - | 礼金/償却・敷引 | 1ヶ月 / - |
| 更新料 | 1ヶ月 | ||
| その他費用 | - | ||
| 所在地 | 東京都荒川区西尾久5丁目16-4 | ||
| 交通 | |||
| 間取り | 2LDK | 間取り内訳 |
洋室 6 畳 LDK 10 畳 洋室 6 畳 |
| 専有面積 | 48.50m² | バルコニー面積 | |
| 築年月(築年数) | 1995年01月(築31年) | 方位 | 北 |
| 建物構造 | 鉄骨造 | 所在階/階建 | 2階/5階建 |
| 総戸数 | - | 駐車場 | |
| 保険料 | 要 21,000円 2年 | 契約期間 | 2年間 |
| 現況(予定年月) | 即時 | ||
| 管理 | |||
| 設備・条件 | 2階以上、角部屋、システムキッチン、バス・トイレ別、室内洗濯機置き場、フローリング、エアコン、バルコニー、即入居可、駐輪場、都市ガス | ||
| 備考 | 更新事務手数料:新賃料の0.275ヶ月分。お車でご案内いたします。ご来店お待ちしております。 | ||
| 周辺施設 |
コンビニ距離341m、スーパー距離215m、病院距離684m |
||
| 物件番号 | 987570 | 取引態様 | 仲介 |
| 情報更新日 | 2026年02月06日 | ||
| 物件番号 | |||
敷金・礼金・家賃・入居時期時期など、何でもご相談ください!
山手線・京浜東北線の2路線が使える便利な街・田端!
ハウス・トゥ・ハウス田端店で元気にお待ちしております!







