La Douceur秋葉原504 5階 | 1K | 12.4万円
インターネット無料♪複数沿線利用可能で通勤通学に便利♪
| 賃料 | 12.4万円 | 管理費・共益費 | 1.5万円 |
|---|---|---|---|
| 敷金/礼金 | なし / 1ヶ月 | 専有面積 | 25.87m² |
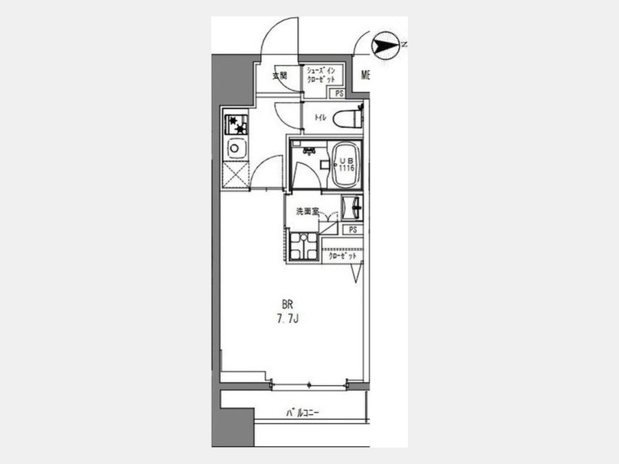
| 間取り | 1K | 階建 | 5階/12階建 |
La Douceur秋葉原504の詳細
| 物件種別 | マンション | ||
|---|---|---|---|
| 賃料 | 12.4万円 | 管理費・共益費 | 1.5万円 |
| 敷金/保証金 | なし / - | 礼金/償却・敷引 | 1ヶ月 / - |
| 更新料 | 1ヶ月 | ||
| その他費用 |
清掃費:38,500円 エアコン清掃費:11,000円 鍵交換費用:33,000円 |
||
| 所在地 | 東京都台東区台東2丁目3-12 | ||
| 交通 | |||
| 間取り | 1K | 間取り内訳 |
洋室 7.7 畳 |
| 専有面積 | 25.87m² | バルコニー面積 | |
| 築年月(築年数) | 2020年02月(築5年) | 方位 | 東 |
| 建物構造 | RC(鉄筋コンクリート) | 所在階/階建 | 5階/12階建 |
| 総戸数 | 74戸 | 駐車場 | 無 |
| 保険料 | 要 16,550円 2年 | 契約期間 | 2年間 |
| 現況(予定年月) | 2026年02月下旬 | ||
| 管理 | |||
| 設備・条件 | 2階以上、システムキッチン、バス・トイレ別、室内洗濯機置き場、フローリング、エアコン、シューズインクローゼット、バルコニー、敷金なし、インターネット対応、BSアンテナ、CSアンテナ、CATV、オートロック、TVドアホン、防犯カメラ、宅配ボックス、バイク置き場、駐輪場、エレベータ | ||
| 備考 | お車でご案内いたします。ご来店お待ちしております。 | ||
| 周辺施設 |
コンビニ距離107m、スーパー距離169m、病院距離1,096m |
||
| 物件番号 | 972993 | 取引態様 | 仲介 |
| 情報更新日 | 2026年01月12日 | ||
| 物件番号 | |||
敷金・礼金・家賃・入居時期時期など、何でもご相談ください!
歴史と情緒が薫る街・西日暮里でお部屋探し♪
ハウス・トゥ・ハウス西日暮里店で元気にお待ちしております!







