ルクレ西池袋103 1階 | 1K | 13.3万円
すぐ近く(徒歩3分)には池袋警察署 西池袋地域安全センターもあります。収納はシューズボックス・クロゼ
| 賃料 | 13.3万円 | 管理費・共益費 | 1.5万円 |
|---|---|---|---|
| 敷金/礼金 | なし / 1ヶ月 | 専有面積 | 25.54m² |
| 間取り | 1K | 階建 | 1階/5階建 |
ルクレ西池袋103の詳細
| 物件種別 | マンション | ||
|---|---|---|---|
| 賃料 | 13.3万円 | 管理費・共益費 | 1.5万円 |
| 敷金/保証金 | なし / - | 礼金/償却・敷引 | 1ヶ月 / - |
| 更新料 | 1ヶ月 | ||
| その他費用 |
鍵交換費用:42,900円 室内清掃費用:55,000円 |
||
| 所在地 | 東京都豊島区西池袋3丁目15-6 | ||
| 交通 | |||
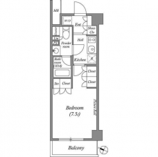
| 間取り | 1K | 間取り内訳 |
洋室 7.5 畳 1 室 K 1 室 |
| 専有面積 | 25.54m² | バルコニー面積 | |
| 築年月(築年数) | 2017年01月(築9年) | 方位 | - |
| 建物構造 | RC(鉄筋コンクリート) | 所在階/階建 | 1階/5階建 |
| 総戸数 | 65戸 | 駐車場 | |
| 保険料 | 要 22,000円 2年 | 契約期間 | 2年間 |
| 現況(予定年月) | 2025年12月下旬 | ||
| 管理 | |||
| 設備・条件 | 1階、システムキッチン、バス・トイレ別、温水洗浄便座、浴室乾燥機、室内洗濯機置き場、フローリング、エアコン、バルコニー、敷金なし、ペット相談、BSアンテナ、CSアンテナ、CATV、オートロック、防犯カメラ、宅配ボックス、バイク置き場、駐輪場、エレベータ、都市ガス | ||
| 備考 | 解約予告2ヶ月前。短期解約違約金:1年未満は総賃料の1ヶ月分。ペット飼育:小型犬または猫どちらか1匹のみ、敷金1ヶ月増。電力会社指定:イーネットワークシステムズ供給。退去時クリーニング代35000円(税別)・エアコン清掃代15000円(税別)。 | ||
| 周辺施設 |
コンビニ距離233m、スーパー距離144m、病院距離235m |
||
| 物件番号 | 965117 | 取引態様 | 仲介 |
| 情報更新日 | 2026年01月29日 | ||
| 物件番号 | |||
敷金・礼金・家賃・入居時期時期など、何でもご相談ください!
JR山手線・巣鴨駅から徒歩1分!
ハウス・トゥ・ハウス巣鴨店で元気にお待ちしております!







