LUMEED赤羽NORTH501 5階 | 1SLDK | 18.9万円
歩いて3分のところに赤羽警察署 赤羽北交番があります。共用部にはエレベータ・敷地内ごみ置き場などが揃
| 賃料 | 18.9万円 | 管理費・共益費 | 1万円 |
|---|---|---|---|
| 敷金/礼金 | 1ヶ月 / 1ヶ月 | 専有面積 | 55.92m² |
| 間取り | 1SLDK | 階建 | 5階/5階建 |
360度パノラマ
LUMEED赤羽NORTH501の詳細
| 物件種別 | マンション | ||
|---|---|---|---|
| 賃料 | 18.9万円 | 管理費・共益費 | 1万円 |
| 敷金/保証金 | 1ヶ月 / - | 礼金/償却・敷引 | 1ヶ月 / - |
| 更新料 | 1ヶ月 | ||
| その他費用 |
契約管理手数料 :11,000円 鍵交換費用:28,600円 室内清掃費用:85,000円 |
||
| 所在地 | 東京都北区赤羽北2丁目13-5 | ||
| 交通 | |||
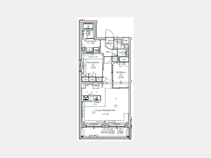
| 間取り | 1SLDK | 間取り内訳 |
LDK 17 畳 洋室 3.4 畳 S 4 畳 |
| 専有面積 | 55.92m² | バルコニー面積 | |
| 築年月(築年数) | 2023年12月(築2年) | 方位 | 南 |
| 建物構造 | RC(鉄筋コンクリート) | 所在階/階建 | 5階/5階建 |
| 総戸数 | - | 駐車場 | |
| 保険料 | 要 20,000円 | 契約期間 | 2年間 |
| 現況(予定年月) | 2026年04月中旬 | ||
| 管理 | |||
| 設備・条件 | 2階以上、最上階、南向き部屋、システムキッチン、バス・トイレ別、温水洗浄便座、浴室乾燥機、室内洗濯機置き場、フローリング、エアコン、バルコニー、ペット相談、2人入居相談、360°パノラマ有り、インターネット対応、BSアンテナ、CSアンテナ、オートロック、TVドアホン、宅配ボックス、エレベータ、都市ガス | ||
| 備考 | 短期解約違約金あり/2か月前解約/更新事務手数料0.5ヶ月分/ペット飼育時、小動物飼育使用料賃料1ヶ月分(償却)/掲載の室内写真は他のお部屋の画像です/掲載情報と現況が異なる場合は、現況を優先とします。 | ||
| 周辺施設 |
コンビニ距離243m、スーパー距離171m、病院距離247m |
||
| 物件番号 | 982266 | 取引態様 | 仲介 |
| 情報更新日 | 2026年03月13日 | ||
| 物件番号 | |||
敷金・礼金・家賃・入居時期時期など、何でもご相談ください!
3路線3駅利用可の板橋エリアでお部屋探し♪
ハウス・トゥ・ハウス板橋東口店で元気にお待ちしております!







