ドルチェ池袋ノース弐番館NC403 4階 | 1K | 8.4万円
こだわりポイント満載のドルチェ池袋ノース弐番館NC。近くにはセブンイレブン 板橋仲宿店(徒歩3分)が
| 賃料 | 8.4万円 | 管理費・共益費 | 0.8万円 |
|---|---|---|---|
| 敷金/礼金 | なし / 1ヶ月 | 専有面積 | 23.75m² |
| 間取り | 1K | 階建 | 4階/11階建 |
ドルチェ池袋ノース弐番館NC403の詳細
| 物件種別 | マンション | ||
|---|---|---|---|
| 賃料 | 8.4万円 | 管理費・共益費 | 0.8万円 |
| 敷金/保証金 | なし / - | 礼金/償却・敷引 | 1ヶ月 / - |
| 更新料 | 1.5ヶ月 | ||
| その他費用 |
文書事務手数料:11,000円 安心サポート24:19,800円 鍵交換費用:33,000円 室内清掃費用:44,000円 |
||
| 所在地 | 東京都板橋区仲宿58-9 | ||
| 交通 | |||
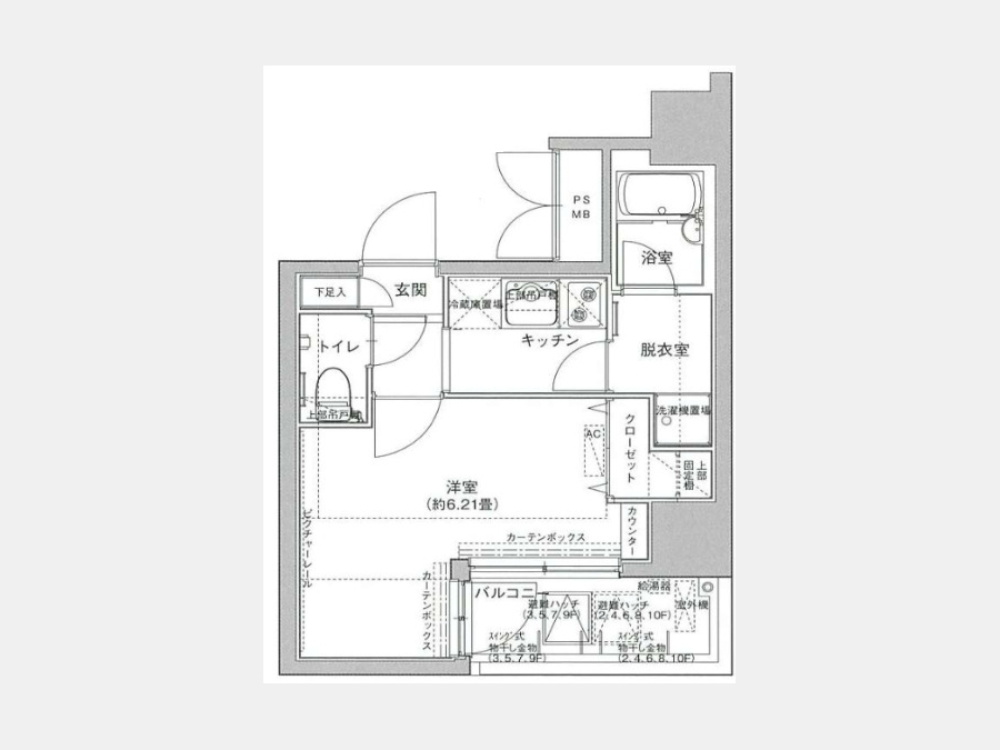
| 間取り | 1K | 間取り内訳 |
洋室 |
| 専有面積 | 23.75m² | バルコニー面積 | |
| 築年月(築年数) | 2009年06月(築16年) | 方位 | 西 |
| 建物構造 | RC(鉄筋コンクリート) | 所在階/階建 | 4階/11階建 |
| 総戸数 | - | 駐車場 | |
| 保険料 | 要 18,000円 2年 | 契約期間 | 2年間 |
| 現況(予定年月) | 2026年03月下旬 | ||
| 管理 | |||
| 設備・条件 | 2階以上、角部屋、システムキッチン、バス・トイレ別、温水洗浄便座、浴室乾燥機、室内洗濯機置き場、フローリング、エアコン、バルコニー、分譲賃貸、敷金なし、インターネット対応、オートロック、TVドアホン、防犯カメラ、宅配ボックス、エレベータ | ||
| 備考 | 振替事務手数料330円(月額) 更新事務手数料 : 11000円。短期解約違約金:1年未満1ヶ月。エアコン内部洗浄:14300円/台。室内設備は洗面台・フローリング・バストイレ別などが揃っており、とても充実しています。毎日の生活が楽しくなる間取り、1Kのお住まいになっています。できるだけ早めに不動産情報を集めたい方は当社スタッフまでご連絡ください。地域の不動産情報をいち早くお届けします。 | ||
| 周辺施設 |
コンビニ距離157m、スーパー距離243m、病院距離948m |
||
| 物件番号 | 1001309 | 取引態様 | 仲介 |
| 情報更新日 | 2026年03月10日 | ||
| 物件番号 | |||
敷金・礼金・家賃・入居時期時期など、何でもご相談ください!
3路線3駅利用可の板橋エリアでお部屋探し♪
ハウス・トゥ・ハウス板橋東口店で元気にお待ちしております!







