ザ・パークハビオ東長崎801 8階 | 1DK | 14.3万円
安心のオートロック付き!TVモニター付きインターホン!
| 賃料 | 14.3万円 | 管理費・共益費 | 1.5万円 |
|---|---|---|---|
| 敷金/礼金 | 1ヶ月 / 1ヶ月 | 専有面積 | 33.59m² |
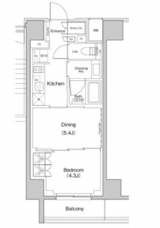
| 間取り | 1DK | 階建 | 8階/10階建 |
ザ・パークハビオ東長崎801の詳細
| 物件種別 | マンション | ||
|---|---|---|---|
| 賃料 | 14.3万円 | 管理費・共益費 | 1.5万円 |
| 敷金/保証金 | 1ヶ月 / - | 礼金/償却・敷引 | 1ヶ月 / - |
| 更新料 | 1ヶ月 | ||
| その他費用 |
安心サポート(2年):16,500円 鍵交換費用:33,000円 |
||
| 所在地 | 東京都豊島区南長崎5丁目28-8 | ||
| 交通 | |||
| 間取り | 1DK | 間取り内訳 | |
| 専有面積 | 33.59m² | バルコニー面積 | |
| 築年月(築年数) | 2023年11月(築2年) | 方位 | - |
| 建物構造 | RC(鉄筋コンクリート) | 所在階/階建 | 8階/10階建 |
| 総戸数 | - | 駐車場 | 無 |
| 保険料 | 要 | 契約期間 | 2年間 |
| 現況(予定年月) | 2026年04月下旬 | ||
| 管理 | |||
| 設備・条件 | 2階以上、システムキッチン、バス・トイレ別、温水洗浄便座、浴室乾燥機、追い焚き、室内洗濯機置き場、フローリング、エアコン、バルコニー、保証人不要、ペット相談、楽器相談、2人入居相談、インターネット対応、BSアンテナ、CSアンテナ、CATV、オートロック、TVドアホン、防犯カメラ、宅配ボックス、駐輪場、エレベータ、都市ガス | ||
| 備考 | ペット相談可:小型犬・猫計2匹まで、敷金1ヶ月積増。 退去時の室内クリーニング費用・エアコン洗浄費用は借主負担となります。 解約予告2ヶ月前。 冷蔵庫サイズ・扉開閉向きは事前に現地にて採寸・ご確認ください。 ダイニングへのエアコン設置不可。 | ||
| 周辺施設 |
コンビニ距離116m、スーパー距離268m、病院距離818m |
||
| 物件番号 | 1002836 | 取引態様 | 仲介 |
| 情報更新日 | 2026年03月12日 | ||
| 物件番号 | |||
敷金・礼金・家賃・入居時期時期など、何でもご相談ください!
3路線3駅利用可の板橋エリアでお部屋探し♪
ハウス・トゥ・ハウス板橋東口店で元気にお待ちしております!







