山一東尾久ステーツ103 1階 | 1DK | 9.9万円
尾久警察署 赤土交番が205mのところにあります。化粧品やスタイリング剤などをまとめて出して、サッ
| 賃料 | 9.9万円 | 管理費・共益費 | なし |
|---|---|---|---|
| 敷金/礼金 | 1ヶ月 / 1ヶ月 | 専有面積 | 30.33m² |
| 間取り | 1DK | 階建 | 1階/3階建 |
山一東尾久ステーツ103の詳細
| 物件種別 | マンション | ||
|---|---|---|---|
| 賃料 | 9.9万円 | 管理費・共益費 | なし |
| 敷金/保証金 | 1ヶ月 / - | 礼金/償却・敷引 | 1ヶ月 / - |
| 更新料 | 1ヶ月 | ||
| その他費用 | - | ||
| 所在地 | 東京都荒川区東尾久2丁目43-16 | ||
| 交通 |
日暮里・舎人ライナー「赤土小学校前駅」 徒歩2分 |
||
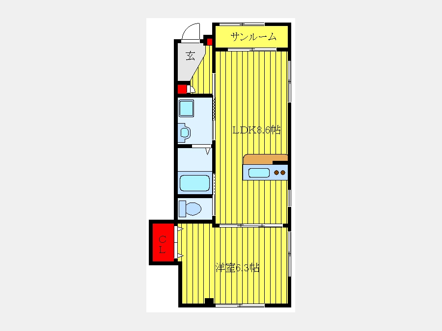
| 間取り | 1DK | 間取り内訳 |
LDK 8.6 畳 1 室 洋室 6.3 畳 1 室 |
| 専有面積 | 30.33m² | バルコニー面積 | |
| 築年月(築年数) | 1989年04月(築36年) | 方位 | - |
| 建物構造 | 鉄骨造 | 所在階/階建 | 1階/3階建 |
| 総戸数 | - | 駐車場 | |
| 保険料 | 要 | 契約期間 | 2年間 |
| 現況(予定年月) | 即時 | ||
| 管理 | |||
| 設備・条件 | 1階、システムキッチン、バス・トイレ別、温水洗浄便座、室内洗濯機置き場、フローリング、エアコン、即入居可、保証人不要、都市ガス、低層マンション | ||
| 備考 | 更新事務手数料16500円 | ||
| 周辺施設 |
コンビニ距離105m、スーパー距離246m、病院距離250m |
||
| 物件番号 | 990629 | 取引態様 | 一般 |
| 情報更新日 | 2026年02月14日 | ||
| 物件番号 | |||
敷金・礼金・家賃・入居時期時期など、何でもご相談ください!
山手線・京浜東北線の2路線が使える便利な街・田端!
ハウス・トゥ・ハウス田端店で元気にお待ちしております!







