グランカーサ王子Ⅲ302 3階 | 1DK | 15.2万円
新生活を失敗せず、スタートさせたいならこちらの「グランカーサ王子」はいかがでしょうか。最寄りの公園王
| 賃料 | 15.2万円 | 管理費・共益費 | 1万円 |
|---|---|---|---|
| 敷金/礼金 | なし / なし | 専有面積 | 35.12m² |
| 間取り | 1DK | 階建 | 3階/9階建 |
360度パノラマ
グランカーサ王子Ⅲ302の詳細
| 物件種別 | マンション | ||
|---|---|---|---|
| 賃料 | 15.2万円 | 管理費・共益費 | 1万円 |
| 敷金/保証金 | なし / - | 礼金/償却・敷引 | なし / - |
| 更新料 | 1ヶ月 | ||
| その他費用 | 鍵交換費用:33,000円 | ||
| 所在地 | 東京都北区王子3丁目14-9 | ||
| 交通 |
JR京浜東北・根岸線「東十条駅」 徒歩14分 |
||
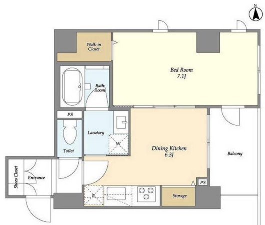
| 間取り | 1DK | 間取り内訳 |
洋室 7.1 畳 DK 6.3 畳 |
| 専有面積 | 35.12m² | バルコニー面積 | |
| 築年月(築年数) | 2023年08月(築2年) | 方位 | 東 |
| 建物構造 | RC(鉄筋コンクリート) | 所在階/階建 | 3階/9階建 |
| 総戸数 | - | 駐車場 | |
| 保険料 | 要 16,550円 2年 | 契約期間 | 2年間 |
| 現況(予定年月) | 即時 | ||
| 管理 | |||
| 設備・条件 | 2階以上、角部屋、システムキッチン、バス・トイレ別、温水洗浄便座、浴室乾燥機、追い焚き、室内洗濯機置き場、フローリング、エアコン、ウォークインクローゼット、バルコニー、即入居可、礼金なし、敷金なし、保証人不要、ペット相談、360°パノラマ有り、インターネット対応、BSアンテナ、CSアンテナ、オートロック、TVドアホン、宅配ボックス、駐輪場、エレベータ、都市ガス | ||
| 備考 | 1年未満の解約時、総賃料1ヶ月分の違約金あり ペット飼育時敷金1ヶ月増額(退去時償却) | ||
| 周辺施設 |
北区立王子桜中学校288m、コンビニ距離141m、スーパー距離669m、病院距離465m |
||
| 物件番号 | 937584 | 取引態様 | 仲介 |
| 情報更新日 | 2025年12月25日 | ||
| 物件番号 | |||
敷金・礼金・家賃・入居時期時期など、何でもご相談ください!
3路線3駅利用可の板橋エリアでお部屋探し♪
ハウス・トゥ・ハウス板橋東口店で元気にお待ちしております!







