プレミアムキューブ文京江戸川橋♯mo104 1階 | 1K | 12.4万円
お車でご案内いたします。お気軽にお問い合わせください。
| 賃料 | 12.4万円 | 管理費・共益費 | 1.5万円 |
|---|---|---|---|
| 敷金/礼金 | 1ヶ月 / 1ヶ月 | 専有面積 | 25.08m² |
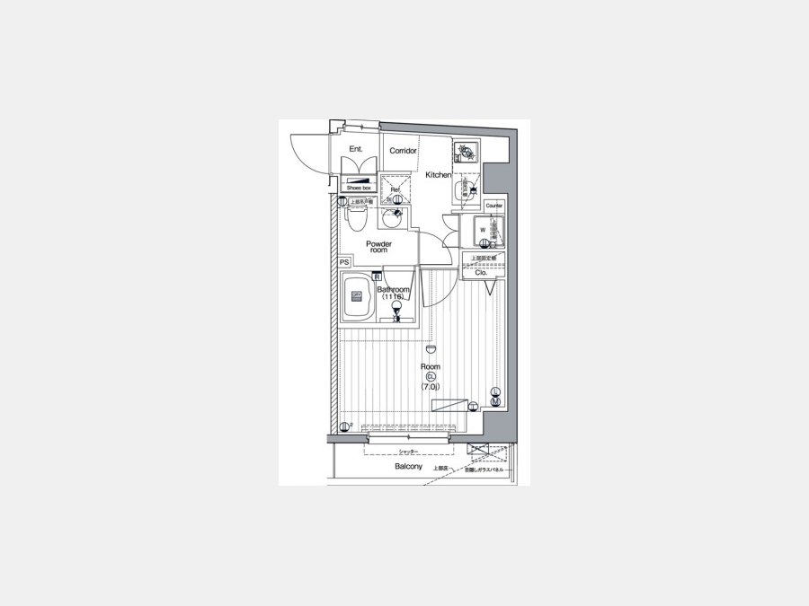
| 間取り | 1K | 階建 | 1階/7階建 |
プレミアムキューブ文京江戸川橋♯mo104の詳細
| 物件種別 | マンション | ||
|---|---|---|---|
| 賃料 | 12.4万円 | 管理費・共益費 | 1.5万円 |
| 敷金/保証金 | 1ヶ月 / - | 礼金/償却・敷引 | 1ヶ月 / - |
| 更新料 | 1.5ヶ月 | ||
| その他費用 |
事務手数料:11,000円 室内抗菌処理代:17,600円 入居中サポート:21,450円 鍵交換費用:22,000円 |
||
| 所在地 | 東京都文京区水道2丁目15-6 | ||
| 交通 | |||
| 間取り | 1K | 間取り内訳 |
洋室 7 畳 1 室 |
| 専有面積 | 25.08m² | バルコニー面積 | |
| 築年月(築年数) | 2016年02月(築10年) | 方位 | 西 |
| 建物構造 | RC(鉄筋コンクリート) | 所在階/階建 | 1階/7階建 |
| 総戸数 | - | 駐車場 | 無 |
| 保険料 | 要 23,000円 2年 | 契約期間 | 2年間 |
| 現況(予定年月) | 2026年04月上旬 | ||
| 管理 | |||
| 設備・条件 | 1階、システムキッチン、バス・トイレ別、温水洗浄便座、浴室乾燥機、追い焚き、室内洗濯機置き場、フローリング、エアコン、バルコニー、分譲賃貸、保証人不要、ペット相談、インターネット対応、BSアンテナ、CSアンテナ、オートロック、TVドアホン、宅配ボックス、バイク置き場、駐輪場、エレベータ、都市ガス | ||
| 備考 | ◆短期解約違約金:敷礼プラン時(1年未満の解約時総賃料の1ヶ月)AZP・SZPプラン時(1年未満の解約時総賃料2ヶ月分、1年以上2年未満の解約時総賃料1ヶ月分) ◆ペット飼育時共益費3500円追加※犬・猫いずれか1匹(成長時体長50cm以下、体重10kg以下) ◆2人以上入居の場合、共益費1000円増額 ◆解約予告2か月前 ◆更新事務手数料22000円 | ||
| 周辺施設 |
コンビニ距離429m、スーパー距離436m、病院距離748m |
||
| 物件番号 | 998893 | 取引態様 | 仲介 |
| 情報更新日 | 2026年03月04日 | ||
| 物件番号 | |||
敷金・礼金・家賃・入居時期時期など、何でもご相談ください!
歴史と情緒が薫る街・西日暮里でお部屋探し♪
ハウス・トゥ・ハウス西日暮里店で元気にお待ちしております!







