ヴィラ南浦和107 1階 | 1K | 6.9万円
住環境が整っているので快適な暮らしをすることができます。賃貸情報のことなら、当社にお問い合わせ下さい
| 賃料 | 6.9万円 | 管理費・共益費 | 0.3万円 |
|---|---|---|---|
| 敷金/礼金 | なし / 1ヶ月 | 専有面積 | 22.35m² |
| 間取り | 1K | 階建 | 1階/3階建 |
ヴィラ南浦和107の詳細
| 物件種別 | マンション | ||
|---|---|---|---|
| 賃料 | 6.9万円 | 管理費・共益費 | 0.3万円 |
| 敷金/保証金 | なし / - | 礼金/償却・敷引 | 1ヶ月 / - |
| 更新料 | 1ヶ月 | ||
| その他費用 |
室内消毒代:16,500円 預かりクリーニング代:36,300円 リブリクラブ入会費:7,700円 鍵交換費用:24,200円 |
||
| 所在地 | 埼玉県川口市大字小谷場869-1 | ||
| 交通 |
JR京浜東北・根岸線「南浦和駅」 徒歩17分 JR京浜東北・根岸線「蕨駅」 徒歩26分 |
||
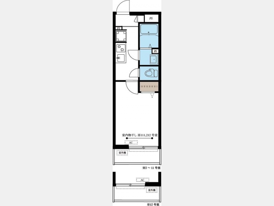
| 間取り | 1K | 間取り内訳 |
洋室 6.2 畳 K |
| 専有面積 | 22.35m² | バルコニー面積 | |
| 築年月(築年数) | 2023年09月(築2年) | 方位 | 南東 |
| 建物構造 | 鉄骨造 | 所在階/階建 | 1階/3階建 |
| 総戸数 | - | 駐車場 | |
| 保険料 | 要 19,000円 2年 | 契約期間 | 2年間 |
| 現況(予定年月) | 2026年02月下旬 | ||
| 管理 | |||
| 設備・条件 | 1階、システムキッチン、バス・トイレ別、温水洗浄便座、浴室乾燥機、室内洗濯機置き場、フローリング、エアコン、バルコニー、敷金なし、インターネット対応、オートロック、TVドアホン、宅配ボックス、都市ガス、低層マンション | ||
| 備考 | リブリクラブ会費2200円(月額) お車でご案内します。お気軽にお問い合わせください 1年未満の解約の場合、賃料+管理費の1ヶ月分の違約金あり 法人契約の場合、礼金1ヶ月。 外干し可否については事前に確認してください。 | ||
| 周辺施設 |
コンビニ距離554m、スーパー距離634m |
||
| 物件番号 | 967289 | 取引態様 | 仲介 |
| 情報更新日 | 2026年02月09日 | ||
| 物件番号 | |||
敷金・礼金・家賃・入居時期時期など、何でもご相談ください!
2024年12月新規オープン!南浦和駅東口から徒歩1分♪
ハウス・トゥ・ハウス南浦和店で元気にお待ちしております!







