ALTERNA大塚206 2階 | 2LDK | 23.5万円
お車でご案内いたします。お気軽にお問い合わせください。
| 賃料 | 23.5万円 | 管理費・共益費 | 1.5万円 |
|---|---|---|---|
| 敷金/礼金 | なし / なし | 専有面積 | 47.36m² |
| 間取り | 2LDK | 階建 | 2階/8階建 |
ALTERNA大塚206の詳細
| 物件種別 | マンション | ||
|---|---|---|---|
| 賃料 | 23.5万円 | 管理費・共益費 | 1.5万円 |
| 敷金/保証金 | なし / - | 礼金/償却・敷引 | なし / - |
| 更新料 | 235,000円 | ||
| その他費用 |
契約事務手数料(仲介):7,700円 Goodプレミアムα(24Hサポートのみ):16,500円 Goodプレミアムα登録料:3,300円 鍵交換費用:24,200円 室内清掃費用:65,560円 |
||
| 所在地 | 東京都豊島区北大塚2丁目31-1 | ||
| 交通 | |||
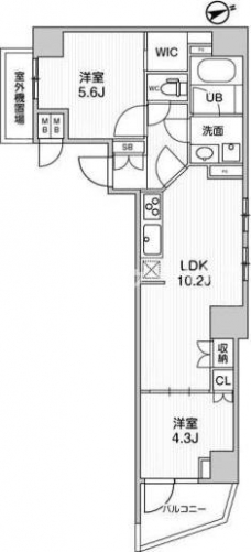
| 間取り | 2LDK | 間取り内訳 |
洋室 5.6 畳 1 室 洋室 4.3 畳 1 室 LDK 10.2 畳 1 室 |
| 専有面積 | 47.36m² | バルコニー面積 | |
| 築年月(築年数) | 2022年01月(築4年) | 方位 | 南東 |
| 建物構造 | RC(鉄筋コンクリート) | 所在階/階建 | 2階/8階建 |
| 総戸数 | - | 駐車場 | |
| 保険料 | 要 28,000円 2年 | 契約期間 | 2年間 |
| 現況(予定年月) | 2026年02月下旬 | ||
| 管理 | |||
| 設備・条件 | 2階以上、システムキッチン、バス・トイレ別、温水洗浄便座、浴室乾燥機、室内洗濯機置き場、フローリング、エアコン、バルコニー、礼金なし、敷金なし、BSアンテナ、CSアンテナ、光ファイバー、オートロック、TVドアホン、防犯カメラ、宅配ボックス、バイク置き場、駐輪場、エレベータ、都市ガス | ||
| 備考 | ◆解約予告2か月前◆ペット相談可(小型犬または猫1匹まで/敷金1ヶ月積み増し)◆退去時室内清掃費65560円(税込)◆退去時エアコン洗浄費1台あたり36300円(税込)◆1年未満の解約時は賃料等2ヶ月分、1年以上2年未満の解約時は賃料等1ヶ月分の短期解約違約金あり | ||
| 周辺施設 |
コンビニ距離44m、スーパー距離164m、病院距離158m |
||
| 物件番号 | 957689 | 取引態様 | 仲介 |
| 情報更新日 | 2026年02月05日 | ||
| 物件番号 | |||
敷金・礼金・家賃・入居時期時期など、何でもご相談ください!
JR山手線・巣鴨駅から徒歩1分!
ハウス・トゥ・ハウス巣鴨店で元気にお待ちしております!







