コムレジ赤羽 賃貸棟706 7階 | 1LDK | 20万円
北区エリアでの住まいなら、住み心地も快適な「コムレジ赤羽 賃貸棟」はいかがでしょうか。赤羽警察署
| 賃料 | 20万円 | 管理費・共益費 | 2.7万円 |
|---|---|---|---|
| 敷金/礼金 | 1ヶ月 / 1ヶ月 | 専有面積 | 41.09m² |
| 間取り | 1LDK | 階建 | 7階/8階建 |
コムレジ赤羽 賃貸棟706の詳細
| 物件種別 | マンション | ||
|---|---|---|---|
| 賃料 | 20万円 | 管理費・共益費 | 2.7万円 |
| 敷金/保証金 | 1ヶ月 / - | 礼金/償却・敷引 | 1ヶ月 / - |
| 更新料 | 1ヶ月 | ||
| その他費用 | 鍵交換費用:16,500円 | ||
| 所在地 | 東京都北区赤羽南2丁目2-9 | ||
| 交通 |
JR京浜東北・根岸線「赤羽駅」 徒歩8分 |
||
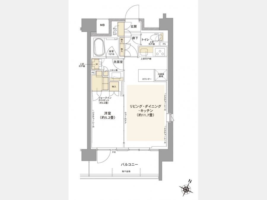
| 間取り | 1LDK | 間取り内訳 |
洋室 11.7 畳 洋室 5.2 畳 |
| 専有面積 | 41.09m² | バルコニー面積 | |
| 築年月(築年数) | 2022年02月(築4年) | 方位 | 南東 |
| 建物構造 | RC(鉄筋コンクリート) | 所在階/階建 | 7階/8階建 |
| 総戸数 | - | 駐車場 | 空有1台/-27,500円 |
| 保険料 | 要 18,000円 | 契約期間 | 2年間 |
| 現況(予定年月) | 2026年03月下旬 | ||
| 管理 | |||
| 設備・条件 | 2階以上、システムキッチン、バス・トイレ別、温水洗浄便座、浴室乾燥機、追い焚き、室内洗濯機置き場、フローリング、エアコン、床暖房、ウォークインクローゼット、バルコニー、ペット相談、2人入居相談、インターネット対応、CATV、オートロック、TVドアホン、防犯カメラ、宅配ボックス、エレベータ、都市ガス | ||
| 備考 | 退去時に清掃費代等の負担あり/ペット飼育時敷金1ヶ月追加(償却)/掲載情報と現況が異なる場合は、現況を優先とします。 | ||
| 周辺施設 |
コンビニ距離312m、スーパー距離290m、病院距離154m |
||
| 物件番号 | 1000086 | 取引態様 | 仲介 |
| 情報更新日 | 2026年03月14日 | ||
| 物件番号 | |||
敷金・礼金・家賃・入居時期時期など、何でもご相談ください!
都心へのアクセス抜群な赤羽エリアでお部屋探し♪
ハウス・トゥ・ハウス赤羽店で元気にお待ちしております!







