ザ・パークハビオ川口606 6階 | 1DK | 11万円
当社では、地域に詳しい熟練スタッフが川口市や京浜東北線川口付近でのお部屋探しをサポート致します。
| 賃料 | 11万円 | 管理費・共益費 | 1.5万円 |
|---|---|---|---|
| 敷金/礼金 | 1ヶ月 / なし | 専有面積 | 29.49m² |
| 間取り | 1DK | 階建 | 6階/10階建 |
ザ・パークハビオ川口606の詳細
| 物件種別 | マンション | ||
|---|---|---|---|
| 賃料 | 11万円 | 管理費・共益費 | 1.5万円 |
| 敷金/保証金 | 1ヶ月 / - | 礼金/償却・敷引 | なし / - |
| 更新料 | 1ヶ月 | ||
| その他費用 |
入居中サポート:16,500円 鍵交換費用:33,000円 |
||
| 所在地 | 埼玉県川口市本町4丁目3-11 | ||
| 交通 |
JR京浜東北・根岸線「川口駅」 徒歩4分 |
||
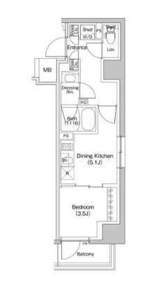
| 間取り | 1DK | 間取り内訳 |
洋室 3.5 畳 DK 5.1 畳 |
| 専有面積 | 29.49m² | バルコニー面積 | |
| 築年月(築年数) | 2023年09月(築2年) | 方位 | 南西 |
| 建物構造 | RC(鉄筋コンクリート) | 所在階/階建 | 6階/10階建 |
| 総戸数 | - | 駐車場 | |
| 保険料 | 要 | 契約期間 | 2年間 |
| 現況(予定年月) | 2026年03月下旬 | ||
| 管理 | |||
| 設備・条件 | 2階以上、角部屋、システムキッチン、バス・トイレ別、温水洗浄便座、浴室乾燥機、室内洗濯機置き場、フローリング、エアコン、バルコニー、礼金なし、保証人不要、ペット相談、楽器相談、事務所相談、インターネット対応、BSアンテナ、CSアンテナ、オートロック、TVドアホン、宅配ボックス、駐輪場、エレベータ、都市ガス、デザイナーズ | ||
| 備考 | ペット・楽器相談(諸条件弊社募集図面要確認) SOHO使用応相談(敷金1か月積増) 民泊不可 契約時鍵交換(必須)・退去時室内清掃・エアコン洗浄費用借主負担 付属施設空状況要確認 | ||
| 周辺施設 |
コンビニ距離167m、スーパー距離97m、病院距離2,014m |
||
| 物件番号 | 991580 | 取引態様 | 仲介 |
| 情報更新日 | 2026年02月16日 | ||
| 物件番号 | |||
敷金・礼金・家賃・入居時期時期など、何でもご相談ください!
2024年12月新規オープン!南浦和駅東口から徒歩1分♪
ハウス・トゥ・ハウス南浦和店で元気にお待ちしております!







