ザ・パークハビオ川口908 9階 | 1R | 8.7万円
川口市エリアでの新生活をご検討の方に、素敵な暮らしを当社のスタッフが全力でサポート致します。京浜東北
| 賃料 | 8.7万円 | 管理費・共益費 | 1.5万円 |
|---|---|---|---|
| 敷金/礼金 | 1ヶ月 / なし | 専有面積 | 22.14m² |
| 間取り | 1R | 階建 | 9階/10階建 |
360度パノラマ
ザ・パークハビオ川口908の詳細
| 物件種別 | マンション | ||
|---|---|---|---|
| 賃料 | 8.7万円 | 管理費・共益費 | 1.5万円 |
| 敷金/保証金 | 1ヶ月 / - | 礼金/償却・敷引 | なし / - |
| 更新料 | 1ヶ月 | ||
| その他費用 |
駆付けサポート24/2年:16,500円 鍵交換費用:33,000円 |
||
| 所在地 | 埼玉県川口市本町4丁目3-11 | ||
| 交通 |
JR京浜東北・根岸線「川口駅」 徒歩4分 |
||
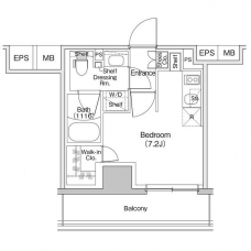
| 間取り | 1R | 間取り内訳 |
洋室 7.2 畳 |
| 専有面積 | 22.14m² | バルコニー面積 | |
| 築年月(築年数) | 2023年09月(築2年) | 方位 | 北東 |
| 建物構造 | RC(鉄筋コンクリート) | 所在階/階建 | 9階/10階建 |
| 総戸数 | - | 駐車場 | 空無 |
| 保険料 | 要 | 契約期間 | 2年間 |
| 現況(予定年月) | 2025年12月下旬 | ||
| 管理 | |||
| 設備・条件 | 2階以上、システムキッチン、バス・トイレ別、温水洗浄便座、浴室乾燥機、室内洗濯機置き場、フローリング、エアコン、ウォークインクローゼット、バルコニー、礼金なし、保証人不要、ペット相談、楽器相談、360°パノラマ有り、インターネット対応、BSアンテナ、CSアンテナ、オートロック、TVドアホン、宅配ボックス、駐輪場、エレベータ、都市ガス、デザイナーズ | ||
| 備考 | お車でご案内します。お気軽にお問い合わせください。 ペット相談可(小型犬・猫計2匹迄/敷金1か月積増) 楽器相談可(10時から20時/連続演奏1時間以内/消音機能付限定) SOHO相談可(登記・不特定多数来訪業種・営業看板設置何れも不可/敷金1か月積増) 解約予告2か月前 | ||
| 周辺施設 |
コンビニ距離167m、スーパー距離97m、病院距離2,014m |
||
| 物件番号 | 939221 | 取引態様 | 仲介 |
| 情報更新日 | 2026年01月24日 | ||
| 物件番号 | |||
敷金・礼金・家賃・入居時期時期など、何でもご相談ください!
2024年12月新規オープン!南浦和駅東口から徒歩1分♪
ハウス・トゥ・ハウス南浦和店で元気にお待ちしております!







