ブレセッドタネヘイ103 1階 | 1K | 6.5万円
女性限定アパート。自然なイメージを感じるフローリングとなっています。お部屋探しも楽しくワクワクしなが
| 賃料 | 6.5万円 | 管理費・共益費 | 0.3万円 |
|---|---|---|---|
| 敷金/礼金 | 1ヶ月 / 1ヶ月 | 専有面積 | 23.80m² |
| 間取り | 1K | 階建 | 1階/2階建 |
ブレセッドタネヘイ103の詳細
| 物件種別 | アパート | ||
|---|---|---|---|
| 賃料 | 6.5万円 | 管理費・共益費 | 0.3万円 |
| 敷金/保証金 | 1ヶ月 / - | 礼金/償却・敷引 | 1ヶ月 / - |
| 更新料 | 1ヶ月 | ||
| その他費用 | - | ||
| 所在地 | 東京都板橋区板橋1丁目4-13 | ||
| 交通 | |||
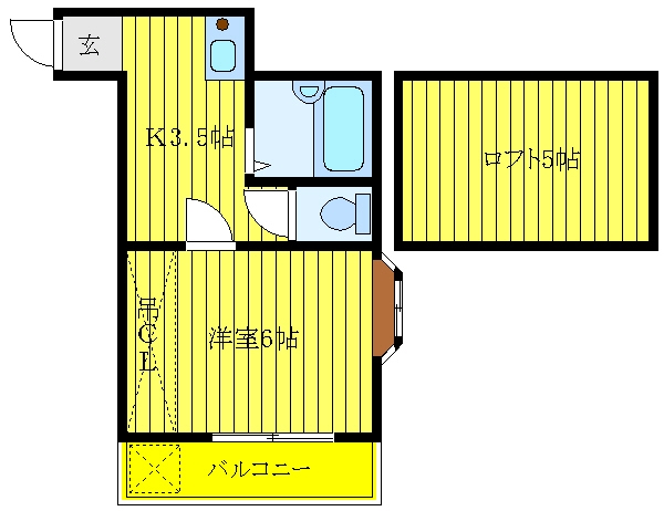
| 間取り | 1K | 間取り内訳 |
洋室 6 畳 K 3.5 畳 ロフト5帖 |
| 専有面積 | 23.80m² | バルコニー面積 | |
| 築年月(築年数) | 1995年04月(築30年) | 方位 | 南西 |
| 建物構造 | 木造 | 所在階/階建 | 1階/2階建 |
| 総戸数 | 5戸 | 駐車場 | 無 |
| 保険料 | 要 | 契約期間 | 2年間 |
| 現況(予定年月) | 即時 | ||
| 管理 | 管理人/無、 | ||
| 設備・条件 | 1階、角部屋、バス・トイレ別、フローリング、ロフト付き、エアコン、バルコニー、即入居可、保証人不要、ルームシェア相談、インターネット対応、CATV、都市ガス | ||
| 備考 | 更新事務手数料16500円。閑静な住宅地にあるアパートです。新しい生活を気持ちよく送れる風通しの良いアパートはいかがですか。クローゼット付きの物件です。 | ||
| 周辺施設 |
コンビニ距離79m、スーパー距離114m、病院距離555m |
||
| 物件番号 | 988253 | 取引態様 | 一般 |
| 情報更新日 | 2026年02月08日 | ||
| 物件番号 | |||
敷金・礼金・家賃・入居時期時期など、何でもご相談ください!
歴史と情緒が薫る街・西日暮里でお部屋探し♪
ハウス・トゥ・ハウス西日暮里店で元気にお待ちしております!







