レジェンダリーコート赤羽ANNEX1002 10階 | 1SLDK | 19.1万円
| 賃料 | 19.1万円 | 管理費・共益費 | 0.9万円 |
|---|---|---|---|
| 敷金/礼金 | 1ヶ月 / 2ヶ月 | 専有面積 | 48.85m² |
| 間取り | 1SLDK | 階建 | 10階/10階建 |
360度パノラマ
レジェンダリーコート赤羽ANNEX1002の詳細
| 物件種別 | マンション | ||
|---|---|---|---|
| 賃料 | 19.1万円 | 管理費・共益費 | 0.9万円 |
| 敷金/保証金 | 1ヶ月 / - | 礼金/償却・敷引 | 2ヶ月 / - |
| 更新料 | 1ヶ月 | ||
| その他費用 | 鍵交換費用:22,000円 | ||
| 所在地 | 東京都北区赤羽2丁目64-10 | ||
| 交通 |
JR京浜東北・根岸線「赤羽駅」 徒歩10分 |
||
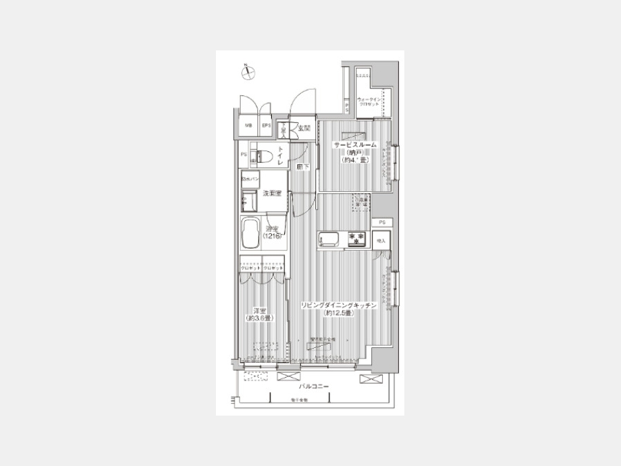
| 間取り | 1SLDK | 間取り内訳 |
LDK 12.5 畳 洋室 3.6 畳 S 4.1 畳 |
| 専有面積 | 48.85m² | バルコニー面積 | |
| 築年月(築年数) | 2021年02月(築5年) | 方位 | 南 |
| 建物構造 | RC(鉄筋コンクリート) | 所在階/階建 | 10階/10階建 |
| 総戸数 | - | 駐車場 | |
| 保険料 | 要 | 契約期間 | 2年間 |
| 現況(予定年月) | 2026年02月下旬 | ||
| 管理 | |||
| 設備・条件 | 2階以上、最上階、角部屋、南向き部屋、システムキッチン、カウンターキッチン、バス・トイレ別、浴室乾燥機、追い焚き、室内洗濯機置き場、フローリング、エアコン、ウォークインクローゼット、バルコニー、360°パノラマ有り、インターネット対応、BSアンテナ、CSアンテナ、オートロック、TVドアホン、防犯カメラ、宅配ボックス、駐輪場、エレベータ | ||
| 備考 | 掲載情報と現況が異なる場合は、現況を優先とします。 | ||
| 周辺施設 |
コンビニ距離162m、スーパー距離213m、病院距離437m |
||
| 物件番号 | 977925 | 取引態様 | 仲介 |
| 情報更新日 | 2026年03月10日 | ||
| 物件番号 | |||
敷金・礼金・家賃・入居時期時期など、何でもご相談ください!
JR山手線・巣鴨駅から徒歩1分!
ハウス・トゥ・ハウス巣鴨店で元気にお待ちしております!







