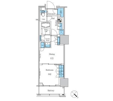
パークアクシス滝野川ラ ブリーズ1116 11階 | 1DK | 15.8万円
安心のオートロック付き!便利な宅配ボックス!
| 賃料 | 15.8万円 | 管理費・共益費 | 1.2万円 |
|---|---|---|---|
| 敷金/礼金 | 1ヶ月 / 1ヶ月 | 専有面積 | 34.44m² |
| 間取り | 1DK | 階建 | 11階/17階建(B1階) |
パークアクシス滝野川ラ ブリーズ1116の詳細
| 物件種別 | マンション | ||
|---|---|---|---|
| 賃料 | 15.8万円 | 管理費・共益費 | 1.2万円 |
| 敷金/保証金 | 1ヶ月 / - | 礼金/償却・敷引 | 1ヶ月 / - |
| 更新料 | 1ヶ月 | ||
| その他費用 |
鍵交換費用:22,000円 室内清掃費用:59,400円 |
||
| 所在地 | 東京都北区滝野川6丁目21-7 | ||
| 交通 | |||
| 間取り | 1DK | 間取り内訳 | |
| 専有面積 | 34.44m² | バルコニー面積 | |
| 築年月(築年数) | 2014年01月(築11年) | 方位 | 北東 |
| 建物構造 | RC(鉄筋コンクリート) | 所在階/階建 | 11階/17階建(B1階) |
| 総戸数 | - | 駐車場 | 無 |
| 保険料 | 要 | 契約期間 | 2年間 |
| 現況(予定年月) | 2026年02月上旬 | ||
| 管理 | |||
| 設備・条件 | 2階以上、システムキッチン、バス・トイレ別、浴室乾燥機、追い焚き、室内洗濯機置き場、フローリング、エアコン、バルコニー、保証人不要、ペット相談、2人入居相談、BSアンテナ、CSアンテナ、CATV、光ファイバー、オートロック、宅配ボックス、エレベータ | ||
| 備考 | ペット飼育相談可能:小型犬・猫/敷金1ヶ月追加。 フィットネスジム・キッズスペース・会議室は24時間無料利用可能。 敷地内に保育園・ドラッグストア有り。 ピアノ相談可能(グランドピアノ不可)。 駐輪場:1住戸1台・駐輪ステッカー代2200円。 | ||
| 周辺施設 |
コンビニ距離307m、スーパー距離280m、病院距離359m |
||
| 物件番号 | 970241 | 取引態様 | 仲介 |
| 情報更新日 | 2025年12月26日 | ||
| 物件番号 | |||
敷金・礼金・家賃・入居時期時期など、何でもご相談ください!
山手線・京浜東北線の2路線が使える便利な街・田端!
ハウス・トゥ・ハウス田端店で元気にお待ちしております!







