スカイコート赤羽第3309 3階 | 1R | 5.45万円
| 賃料 | 5.45万円 | 管理費・共益費 | 0.55万円 |
|---|---|---|---|
| 敷金/礼金 | 1ヶ月 / なし | 専有面積 | 17.16m² |
| 間取り | 1R | 階建 | 3階/4階建 |
スカイコート赤羽第3309の詳細
| 物件種別 | マンション | ||
|---|---|---|---|
| 賃料 | 5.45万円 | 管理費・共益費 | 0.55万円 |
| 敷金/保証金 | 1ヶ月 / - | 礼金/償却・敷引 | なし / - |
| 更新料 | 1.5ヶ月 | ||
| その他費用 |
消火剤:5,500円 鍵交換費用:22,000円 |
||
| 所在地 | 東京都北区志茂5丁目17-7 | ||
| 交通 |
JR京浜東北・根岸線「赤羽駅」 徒歩14分 |
||
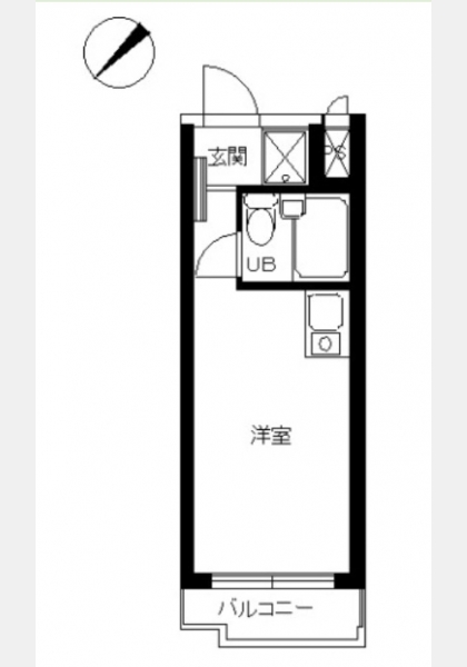
| 間取り | 1R | 間取り内訳 |
洋室 |
| 専有面積 | 17.16m² | バルコニー面積 | 2.22m² |
| 築年月(築年数) | 1992年05月(築33年) | 方位 | 北西 |
| 建物構造 | RC(鉄筋コンクリート) | 所在階/階建 | 3階/4階建 |
| 総戸数 | 35戸 | 駐車場 | 無 |
| 保険料 | 要 | 契約期間 | 2年間 |
| 現況(予定年月) | 2026年04月中旬 | ||
| 管理 | |||
| 設備・条件 | 2階以上、室内洗濯機置き場、バルコニー、礼金なし、BSアンテナ、CATV、光ファイバー、オートロック | ||
| 備考 | 少額短期保険1000円(月額) 安心パック1650円(月額) 短期解約違約金あり/退去時に解約事務手数料13200円の負担あり/掲載情報と現況が異なる場合は、現況を優先とします。 | ||
| 周辺施設 |
コンビニ距離573m、スーパー距離725m、病院距離522m |
||
| 物件番号 | 1002642 | 取引態様 | 仲介 |
| 情報更新日 | 2026年03月15日 | ||
| 物件番号 | |||
敷金・礼金・家賃・入居時期時期など、何でもご相談ください!
歴史と情緒が薫る街・西日暮里でお部屋探し♪
ハウス・トゥ・ハウス西日暮里店で元気にお待ちしております!







