コンフォリア成増グリーンサイド302 3階 | 3LDK | 22.4万円
共用部にはゴミ出し24時間OK・宅配ボックスなどが備わっております。セキュリティ面は、オートロック・
| 賃料 | 22.4万円 | 管理費・共益費 | 1.5万円 |
|---|---|---|---|
| 敷金/礼金 | 1ヶ月 / なし | 専有面積 | 67.27m² |
| 間取り | 3LDK | 階建 | 3階/9階建 |
コンフォリア成増グリーンサイド302の詳細
| 物件種別 | マンション | ||
|---|---|---|---|
| 賃料 | 22.4万円 | 管理費・共益費 | 1.5万円 |
| 敷金/保証金 | 1ヶ月 / - | 礼金/償却・敷引 | なし / - |
| 更新料 | 1ヶ月 | ||
| その他費用 |
鍵交換費用:33,000円 室内清掃費用:126,800円 |
||
| 所在地 | 埼玉県和光市白子2丁目26-2 | ||
| 交通 | |||
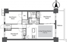
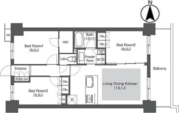
| 間取り | 3LDK | 間取り内訳 |
LDK 13.1 畳 1 室 洋室 6.5 畳 1 室 洋室 6 畳 1 室 洋室 5.5 畳 1 室 |
| 専有面積 | 67.27m² | バルコニー面積 | |
| 築年月(築年数) | 2021年10月(築4年) | 方位 | 東 |
| 建物構造 | RC(鉄筋コンクリート) | 所在階/階建 | 3階/9階建 |
| 総戸数 | 81戸 | 駐車場 | 無 |
| 保険料 | 要 16,550円 2年 | 契約期間 | 2年間 |
| 現況(予定年月) | 即時 | ||
| 管理 | |||
| 設備・条件 | 2階以上、システムキッチン、バス・トイレ別、温水洗浄便座、浴室乾燥機、追い焚き、室内洗濯機置き場、エアコン、床暖房、ウォークインクローゼット、バルコニー、即入居可、礼金なし、保証人不要、ペット相談、2人入居相談、インターネット対応、CATV、オートロック、TVドアホン、防犯カメラ、宅配ボックス、バイク置き場、駐輪場、エレベータ | ||
| 備考 | ペット:小型犬1匹または猫2匹まで、敷金1ヶ月増。短期解約違約金:1年以内は総賃料の1ヶ月分。インターネット無料:ファミリーネットジャパンに限る。一括受電のため電力会社指定(日本電力)。バイク置場・自転車置場有料(要空確認)。共用部にシェアラウンジあり。情報と現況が異なる場合は現況を優先させていただきます。 | ||
| 周辺施設 |
コンビニ距離509m、スーパー距離911m、病院距離588m |
||
| 物件番号 | 992811 | 取引態様 | 仲介 |
| 情報更新日 | 2026年02月28日 | ||
| 物件番号 | |||
敷金・礼金・家賃・入居時期時期など、何でもご相談ください!
3路線3駅利用可の板橋エリアでお部屋探し♪
ハウス・トゥ・ハウス板橋東口店で元気にお待ちしております!







