ルーブル下赤塚506 5階 | 2LDK | 18.6万円
近くにはセブンイレブン 板橋徳丸4丁目店(徒歩5分)がありちょっとした買い物に便利です。セキュリティ
| 賃料 | 18.6万円 | 管理費・共益費 | 1.4万円 |
|---|---|---|---|
| 敷金/礼金 | なし / 1ヶ月 | 専有面積 | 55.88m² |
| 間取り | 2LDK | 階建 | 5階/6階建 |
ルーブル下赤塚506の詳細
| 物件種別 | マンション | ||
|---|---|---|---|
| 賃料 | 18.6万円 | 管理費・共益費 | 1.4万円 |
| 敷金/保証金 | なし / - | 礼金/償却・敷引 | 1ヶ月 / - |
| 更新料 | 1ヶ月 | ||
| その他費用 |
TFDclub:20,000円 鍵交換費用:27,500円 室内清掃費用:77,000円 |
||
| 所在地 | 東京都板橋区徳丸4丁目10-15 | ||
| 交通 | |||
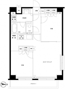
| 間取り | 2LDK | 間取り内訳 |
LDK 12 畳 1 室 洋室 6 畳 1 室 洋室 6 畳 1 室 |
| 専有面積 | 55.88m² | バルコニー面積 | |
| 築年月(築年数) | 2023年02月(築3年) | 方位 | 東 |
| 建物構造 | RC(鉄筋コンクリート) | 所在階/階建 | 5階/6階建 |
| 総戸数 | 59戸 | 駐車場 | |
| 保険料 | 要 20,000円 2年 | 契約期間 | 2年間 |
| 現況(予定年月) | 2026年04月中旬 | ||
| 管理 | |||
| 設備・条件 | 2階以上、角部屋、システムキッチン、バス・トイレ別、温水洗浄便座、浴室乾燥機、追い焚き、室内洗濯機置き場、フローリング、エアコン、バルコニー、分譲賃貸、敷金なし、BSアンテナ、CSアンテナ、光ファイバー、オートロック、TVドアホン、防犯カメラ、宅配ボックス、駐輪場、エレベータ、都市ガス | ||
| 備考 | 保証会社必須。 ルームクリーニング費用(退去時):77000円。 | ||
| 周辺施設 |
コンビニ距離237m、スーパー距離363m、病院距離1,575m |
||
| 物件番号 | 988120 | 取引態様 | 仲介 |
| 情報更新日 | 2026年02月07日 | ||
| 物件番号 | |||
敷金・礼金・家賃・入居時期時期など、何でもご相談ください!
JR山手線・巣鴨駅から徒歩1分!
ハウス・トゥ・ハウス巣鴨店で元気にお待ちしております!







