レガリス文京大塚401 4階 | 1LDK | 17万円
複数路線利用可能で通勤通学に便利♪
| 賃料 | 17万円 | 管理費・共益費 | 1.5万円 |
|---|---|---|---|
| 敷金/礼金 | 1ヶ月 / 1ヶ月 | 専有面積 | 40.41m² |
| 間取り | 1LDK | 階建 | 4階/4階建 |
レガリス文京大塚401の詳細
| 物件種別 | マンション | ||
|---|---|---|---|
| 賃料 | 17万円 | 管理費・共益費 | 1.5万円 |
| 敷金/保証金 | 1ヶ月 / - | 礼金/償却・敷引 | 1ヶ月 / - |
| 更新料 | 1ヶ月 | ||
| その他費用 |
24時間サポート:16,500円 鍵交換費用:52,250円 室内清掃費用:82,500円 |
||
| 所在地 | 東京都文京区大塚4丁目19-13 | ||
| 交通 | |||
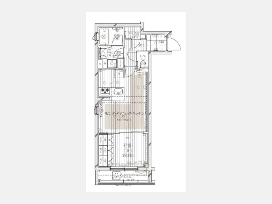
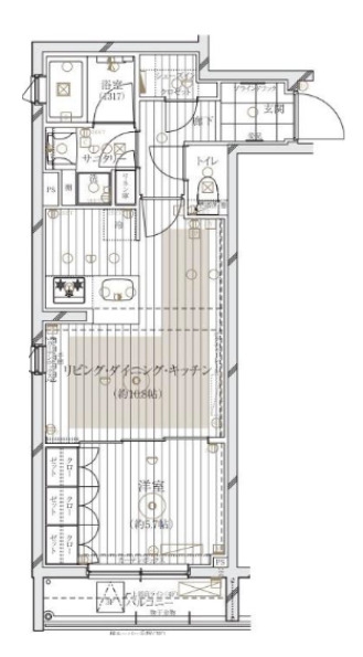
| 間取り | 1LDK | 間取り内訳 |
洋室 5.7 畳 LDK 10.8 畳 |
| 専有面積 | 40.41m² | バルコニー面積 | |
| 築年月(築年数) | 2022年01月(築4年) | 方位 | 南東 |
| 建物構造 | RC(鉄筋コンクリート) | 所在階/階建 | 4階/4階建 |
| 総戸数 | - | 駐車場 | |
| 保険料 | 要 20,000円 2年 | 契約期間 | 2年間 |
| 現況(予定年月) | 2026年04月中旬 | ||
| 管理 | |||
| 設備・条件 | 2階以上、最上階、角部屋、システムキッチン、カウンターキッチン、バス・トイレ別、温水洗浄便座、浴室乾燥機、追い焚き、室内洗濯機置き場、フローリング、エアコン、床暖房、シューズインクローゼット、バルコニー、分譲賃貸、ペット相談、インターネット対応、オートロック、防犯カメラ、宅配ボックス、バイク置き場、駐輪場、エレベータ、都市ガス | ||
| 備考 | ◆解約予告2か月前◆1年未満の解約時は賃料等1ヶ月分の短期解約違約金あり ◆ペット飼育時敷金1ヶ月分増(解約時償却) | ||
| 周辺施設 |
コンビニ距離290m、スーパー距離348m、病院距離190m |
||
| 物件番号 | 997554 | 取引態様 | 仲介 |
| 情報更新日 | 2026年03月03日 | ||
| 物件番号 | |||
敷金・礼金・家賃・入居時期時期など、何でもご相談ください!
JR山手線・巣鴨駅から徒歩1分!
ハウス・トゥ・ハウス巣鴨店で元気にお待ちしております!







