BlueReef2号館101 1階 | 1R | 7.1万円
板橋警察署 熊野町交番が家から380mのところにあります。室内設備はエアコン・ネット使用料不要・BS
| 賃料 | 7.1万円 | 管理費・共益費 | 0.35万円 |
|---|---|---|---|
| 敷金/礼金 | 1ヶ月 / 1ヶ月 | 専有面積 | 10.75m² |
| 間取り | 1R | 階建 | 1階/2階建 |
BlueReef2号館101の詳細
| 物件種別 | アパート | ||
|---|---|---|---|
| 賃料 | 7.1万円 | 管理費・共益費 | 0.35万円 |
| 敷金/保証金 | 1ヶ月 / - | 礼金/償却・敷引 | 1ヶ月 / - |
| 更新料 | 1.5ヶ月 | ||
| その他費用 |
契約事務手数料:11,000円 室内抗菌処理代:17,600円 入居中サポート:21,450円 鍵交換費用:22,000円 室内清掃費用:66,000円 |
||
| 所在地 | 東京都板橋区大山金井町28-4 | ||
| 交通 | |||
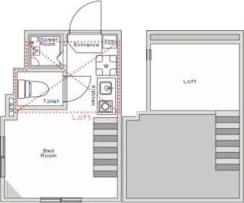
| 間取り | 1R | 間取り内訳 |
洋室 1 室 ロフト |
| 専有面積 | 10.75m² | バルコニー面積 | |
| 築年月(築年数) | 2018年06月(築7年) | 方位 | 南東 |
| 建物構造 | 木造 | 所在階/階建 | 1階/2階建 |
| 総戸数 | - | 駐車場 | 無 |
| 保険料 | 要 22,000円 2年 | 契約期間 | 2年間 |
| 現況(予定年月) | 2026年04月下旬 | ||
| 管理 | |||
| 設備・条件 | 1階、角部屋、温水洗浄便座、室内洗濯機置き場、フローリング、ロフト付き、エアコン、2人入居相談、インターネット対応、BSアンテナ、CSアンテナ、TVドアホン、プロパンガス | ||
| 備考 | 解約予告2ヶ月前。更新事務手数料22000円。2人入居:賃料1000円増。短期解約違約金:1年未満は総賃料の1ヶ月分。敷金償却。指定電力案内あり。インターネット無料(シンク)。日割り賃料は30で割り、10円未満は切上げ。情報と現況が異なる場合は現況を優先させていただきます。 | ||
| 周辺施設 |
コンビニ距離261m、スーパー距離365m、病院距離725m |
||
| 物件番号 | 997173 | 取引態様 | 仲介 |
| 情報更新日 | 2026年03月01日 | ||
| 物件番号 | |||
敷金・礼金・家賃・入居時期時期など、何でもご相談ください!
JR山手線・巣鴨駅から徒歩1分!
ハウス・トゥ・ハウス巣鴨店で元気にお待ちしております!







