ハーモニーレジデンス池袋ウエスト102 1階 | 2K | 11.45万円
セキュリティ面は、TVインターホン・オートロックなど充実しているので、防犯対策もばっちりです。駐輪
| 賃料 | 11.45万円 | 管理費・共益費 | 1.5万円 |
|---|---|---|---|
| 敷金/礼金 | なし / なし | 専有面積 | 25.43m² |
| 間取り | 2K | 階建 | 1階/5階建 |
ハーモニーレジデンス池袋ウエスト102の詳細
| 物件種別 | マンション | ||
|---|---|---|---|
| 賃料 | 11.45万円 | 管理費・共益費 | 1.5万円 |
| 敷金/保証金 | なし / - | 礼金/償却・敷引 | なし / - |
| 更新料 | 1.5ヶ月 | ||
| その他費用 |
契約事務手数料:11,000円 室内抗菌処理代:17,600円 入居中サポート:21,450円 鍵交換費用:22,000円 室内清掃費用:66,000円 |
||
| 所在地 | 東京都豊島区西池袋4丁目8-2 | ||
| 交通 | |||
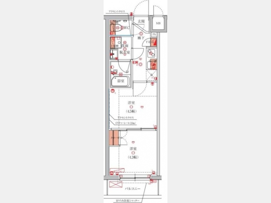
| 間取り | 2K | 間取り内訳 |
洋室 4.5 畳 洋室 4.3 畳 |
| 専有面積 | 25.43m² | バルコニー面積 | |
| 築年月(築年数) | 2021年12月(築4年) | 方位 | 北西 |
| 建物構造 | RC(鉄筋コンクリート) | 所在階/階建 | 1階/5階建 |
| 総戸数 | - | 駐車場 | |
| 保険料 | 要 22,000円 | 契約期間 | 2年間 |
| 現況(予定年月) | 即時 | ||
| 管理 | |||
| 設備・条件 | 1階、システムキッチン、バス・トイレ別、温水洗浄便座、浴室乾燥機、室内洗濯機置き場、フローリング、エアコン、バルコニー、即入居可、礼金なし、敷金なし、ペット相談、2人入居相談、インターネット対応、BSアンテナ、CSアンテナ、オートロック、TVドアホン、宅配ボックス、バイク置き場、駐輪場、エレベータ、プロパンガス | ||
| 備考 | 解約予告2ヶ月前。1年未満の解約は賃料1ヶ月分の違約金あり。更新事務手数料22000円。ペット飼育相談可(共益費3500円追加)。2人以上入居の場合、共益費1000円増額。 | ||
| 周辺施設 |
コンビニ距離214m、スーパー距離175m、病院距離460m |
||
| 物件番号 | 937266 | 取引態様 | 仲介 |
| 情報更新日 | 2026年01月30日 | ||
| 物件番号 | |||
敷金・礼金・家賃・入居時期時期など、何でもご相談ください!
池袋まで埼京線で5分というアクセス利便性が魅力★
ハウス・トゥ・ハウス板橋店で元気にお待ちしております!







