アルテシモデュース404 4階 | 1K | 10.3万円
荷物を注文する時に時間を気にせずに済む宅配ボックスを共用部に備えています。
| 賃料 | 10.3万円 | 管理費・共益費 | 1万円 |
|---|---|---|---|
| 敷金/礼金 | なし / 1ヶ月 | 専有面積 | 25.60m² |
| 間取り | 1K | 階建 | 4階/4階建 |
アルテシモデュース404の詳細
| 物件種別 | マンション | ||
|---|---|---|---|
| 賃料 | 10.3万円 | 管理費・共益費 | 1万円 |
| 敷金/保証金 | なし / - | 礼金/償却・敷引 | 1ヶ月 / - |
| 更新料 | 1ヶ月 | ||
| その他費用 |
契約事務手数料:11,000円 24Hサポート:22,000円 鍵交換費用:27,500円 室内清掃費用:77,000円 |
||
| 所在地 | 東京都板橋区氷川町22-19 | ||
| 交通 | |||
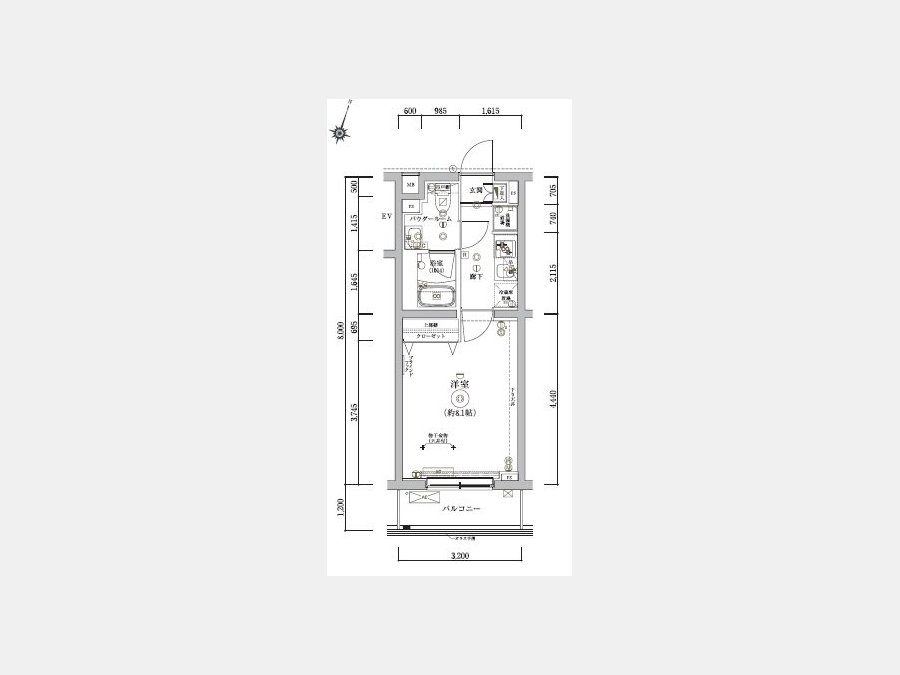
| 間取り | 1K | 間取り内訳 |
洋室 8.1 畳 4 階 1 室 |
| 専有面積 | 25.60m² | バルコニー面積 | |
| 築年月(築年数) | 2019年02月(築7年) | 方位 | 南 |
| 建物構造 | RC(鉄筋コンクリート) | 所在階/階建 | 4階/4階建 |
| 総戸数 | - | 駐車場 | |
| 保険料 | 要 20,000円 2年 | 契約期間 | 2年間 |
| 現況(予定年月) | 2026年04月上旬 | ||
| 管理 | |||
| 設備・条件 | 2階以上、最上階、南向き部屋、システムキッチン、バス・トイレ別、温水洗浄便座、浴室乾燥機、室内洗濯機置き場、フローリング、エアコン、バルコニー、敷金なし、ペット相談、2人入居相談、インターネット対応、BSアンテナ、CSアンテナ、オートロック、防犯カメラ、宅配ボックス、駐輪場、エレベータ、デザイナーズ | ||
| 備考 | 解約予告2ヶ月前。1年未満の解約は賃料1ヶ月分の違約金あり。ペット飼育相談可(小型犬:敷金1ヶ月追加、猫:敷金2ヶ月追加、償却)。更新事務手数料22000円。お車でご案内します。お気軽にお問い合わせ下さい。 | ||
| 周辺施設 |
コンビニ距離314m、スーパー距離428m、病院距離374m |
||
| 物件番号 | 986731 | 取引態様 | 仲介 |
| 情報更新日 | 2026年02月05日 | ||
| 物件番号 | |||
敷金・礼金・家賃・入居時期時期など、何でもご相談ください!
池袋まで埼京線で5分というアクセス利便性が魅力★
ハウス・トゥ・ハウス板橋店で元気にお待ちしております!







