アクサス駒込アジールコート201 2階 | 1DK | 11.9万円
新着情報:アクサス駒込アジールコートの空室情報ならコチラ。滝野川警察署 西ヶ原交番が近く(徒歩5分)
| 賃料 | 11.9万円 | 管理費・共益費 | 1.5万円 |
|---|---|---|---|
| 敷金/礼金 | 1ヶ月 / なし | 専有面積 | 26.32m² |
| 間取り | 1DK | 階建 | 2階/12階建 |
アクサス駒込アジールコート201の詳細
| 物件種別 | マンション | ||
|---|---|---|---|
| 賃料 | 11.9万円 | 管理費・共益費 | 1.5万円 |
| 敷金/保証金 | 1ヶ月 / - | 礼金/償却・敷引 | なし / - |
| 更新料 | 1ヶ月 | ||
| その他費用 |
24時間生活サポート:16,500円 契約事務手数料:11,000円 室内抗菌費用:13,200円 鍵交換費用:33,000円 |
||
| 所在地 | 東京都北区西ケ原1丁目2-10 | ||
| 交通 |
JR京浜東北・根岸線「上中里駅」 徒歩11分 |
||
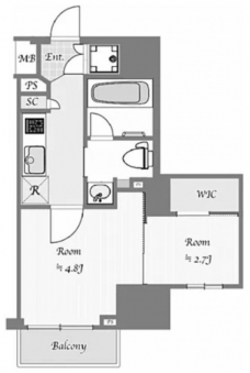
| 間取り | 1DK | 間取り内訳 |
洋室 2.7 畳 DK 4.8 畳 |
| 専有面積 | 26.32m² | バルコニー面積 | |
| 築年月(築年数) | 2019年12月(築6年) | 方位 | 南東 |
| 建物構造 | RC(鉄筋コンクリート) | 所在階/階建 | 2階/12階建 |
| 総戸数 | - | 駐車場 | |
| 保険料 | 要 20,000円 2年 | 契約期間 | 2年間 |
| 現況(予定年月) | 相談 | ||
| 管理 | |||
| 設備・条件 | 2階以上、角部屋、システムキッチン、バス・トイレ別、温水洗浄便座、浴室乾燥機、室内洗濯機置き場、フローリング、エアコン、ウォークインクローゼット、バルコニー、分譲賃貸、礼金なし、インターネット対応、オートロック、TVドアホン、防犯カメラ、宅配ボックス、駐輪場、エレベータ、都市ガス | ||
| 備考 | ■敷金退去時1ヶ月分償却、原状回復費含む ■短期解約違約金有:1年未満賃料2ヶ月分 ※大手法人相談可 | ||
| 周辺施設 |
コンビニ距離219m、スーパー距離100m、病院距離884m |
||
| 物件番号 | 987995 | 取引態様 | 仲介 |
| 情報更新日 | 2026年02月07日 | ||
| 物件番号 | |||
敷金・礼金・家賃・入居時期時期など、何でもご相談ください!
JR山手線・巣鴨駅から徒歩1分!
ハウス・トゥ・ハウス巣鴨店で元気にお待ちしております!







