ウェルネス中央108 1階 | 1DK | 5.8万円
| 賃料 | 5.8万円 | 管理費・共益費 | 0.3万円 |
|---|---|---|---|
| 敷金/礼金 | 1ヶ月 / なし | 専有面積 | 26.09m² |
| 間取り | 1DK | 階建 | 1階/2階建 |
ウェルネス中央108の詳細
| 物件種別 | アパート | ||
|---|---|---|---|
| 賃料 | 5.8万円 | 管理費・共益費 | 0.3万円 |
| 敷金/保証金 | 1ヶ月 / - | 礼金/償却・敷引 | なし / - |
| 更新料 | 1ヶ月 | ||
| その他費用 | - | ||
| 所在地 | 埼玉県蕨市中央3丁目11-7 | ||
| 交通 |
JR京浜東北・根岸線「蕨駅」 徒歩5分 JR京浜東北・根岸線「西川口駅」 徒歩26分 JR京浜東北・根岸線「西川口駅」 徒歩25分 |
||
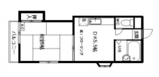
| 間取り | 1DK | 間取り内訳 |
和室 6 畳 DK 5.5 畳 |
| 専有面積 | 26.09m² | バルコニー面積 | |
| 築年月(築年数) | 1990年03月(築35年) | 方位 | 南 |
| 建物構造 | 木造 | 所在階/階建 | 1階/2階建 |
| 総戸数 | - | 駐車場 | 無 |
| 保険料 | 要 | 契約期間 | 2年間 |
| 現況(予定年月) | 2025年11月上旬 | ||
| 管理 | |||
| 設備・条件 | 1階、角部屋、南向き部屋、バス・トイレ別、エアコン、バルコニー、礼金なし、2人入居相談、ルームシェア相談、CATV、プロパンガス | ||
| 備考 | 住宅保険1100円(月額) 上下水道代2000円(月額) 町内会費200円(月額) | ||
| 周辺施設 |
コンビニ距離138m、スーパー距離375m、病院距離941m |
||
| 物件番号 | 923923 | 取引態様 | 仲介 |
| 情報更新日 | 2025年12月25日 | ||
| 物件番号 | |||
敷金・礼金・家賃・入居時期時期など、何でもご相談ください!
2024年12月新規オープン!南浦和駅東口から徒歩1分♪
ハウス・トゥ・ハウス南浦和店で元気にお待ちしております!







