ライオンズプラザ川口本町702 7階 | 2LDK | 14.3万円
| 賃料 | 14.3万円 | 管理費・共益費 | 0.7万円 |
|---|---|---|---|
| 敷金/礼金 | 143,000円 / 143,000円 | 専有面積 | 52.78m² |
| 間取り | 2LDK | 階建 | 7階/12階建 |
ライオンズプラザ川口本町702の詳細
| 物件種別 | マンション | ||
|---|---|---|---|
| 賃料 | 14.3万円 | 管理費・共益費 | 0.7万円 |
| 敷金/保証金 | 143,000円 / - | 礼金/償却・敷引 | 143,000円 / - |
| 更新料 | 1ヶ月 | ||
| その他費用 | - | ||
| 所在地 | 埼玉県川口市本町4丁目7-8 | ||
| 交通 |
JR京浜東北・根岸線「川口駅」 徒歩6分 |
||
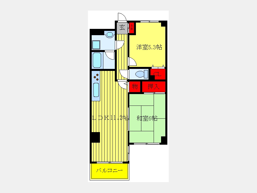
| 間取り | 2LDK | 間取り内訳 |
洋室 5.3 畳 和室 6 畳 LDK 11.2 畳 |
| 専有面積 | 52.78m² | バルコニー面積 | |
| 築年月(築年数) | 1992年05月(築33年) | 方位 | 南 |
| 建物構造 | SRC(鉄骨鉄筋コンクリート) | 所在階/階建 | 7階/12階建 |
| 総戸数 | 66戸 | 駐車場 | |
| 保険料 | 不要 | 契約期間 | 2年間 |
| 現況(予定年月) | 2026年02月中旬 | ||
| 管理 | |||
| 設備・条件 | 2階以上、南向き部屋、システムキッチン、バス・トイレ別、追い焚き、室内洗濯機置き場、エアコン、バルコニー、保証人不要、2人入居相談、オートロック、宅配ボックス、エレベータ、都市ガス | ||
| 備考 | 賃貸入居サポート会費1210円(月額) | ||
| 周辺施設 |
コンビニ距離151m、スーパー距離254m、病院距離206m |
||
| 物件番号 | 984179 | 取引態様 | 仲介 |
| 情報更新日 | 2026年02月03日 | ||
| 物件番号 | |||
敷金・礼金・家賃・入居時期時期など、何でもご相談ください!
2024年12月新規オープン!南浦和駅東口から徒歩1分♪
ハウス・トゥ・ハウス南浦和店で元気にお待ちしております!







