コスモパーク戸田弐番館 202 2階 | 3LDK | 11万円
戸田市エリアで賃貸情報をお探しになるなら、ぜひ当社にお任せ下さい。快適な暮らしができるよう、しっか
| 賃料 | 11万円 | 管理費・共益費 | 1.5万円 |
|---|---|---|---|
| 敷金/礼金 | 2ヶ月 / 1ヶ月 | 専有面積 | 67.06m² |
| 間取り | 3LDK | 階建 | 2階/6階建 |
コスモパーク戸田弐番館 202の詳細
| 物件種別 | マンション | ||
|---|---|---|---|
| 賃料 | 11万円 | 管理費・共益費 | 1.5万円 |
| 敷金/保証金 | 2ヶ月 / - | 礼金/償却・敷引 | 1ヶ月 / - |
| 更新料 | 1ヶ月 | ||
| その他費用 | 除菌施工料:19,800円 | ||
| 所在地 | 埼玉県戸田市上戸田3丁目3-17 | ||
| 交通 | |||
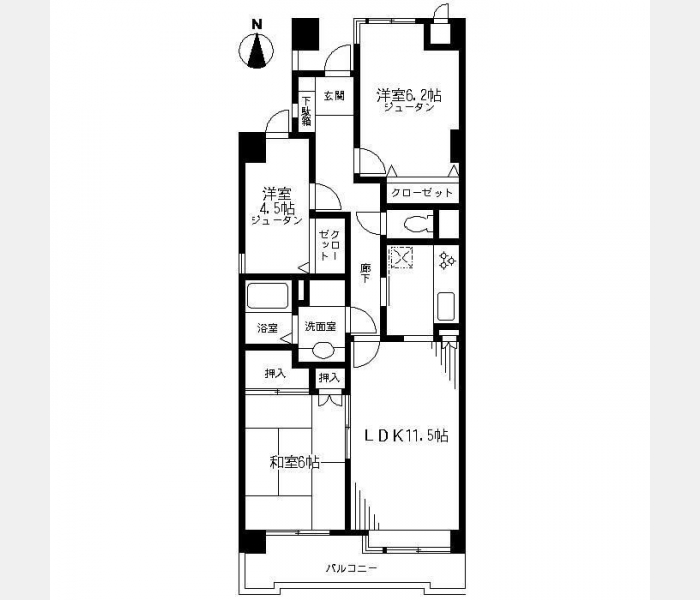
| 間取り | 3LDK | 間取り内訳 |
LDK 11.5 畳 和室 6 畳 洋室 6.2 畳 洋室 4.5 畳 |
| 専有面積 | 67.06m² | バルコニー面積 | |
| 築年月(築年数) | 1988年04月(築37年) | 方位 | 南 |
| 建物構造 | RC(鉄筋コンクリート) | 所在階/階建 | 2階/6階建 |
| 総戸数 | - | 駐車場 | |
| 保険料 | 要 25,000円 2年 | 契約期間 | 2年間 |
| 現況(予定年月) | 即時 | ||
| 管理 | |||
| 設備・条件 | 2階以上、角部屋、南向き部屋、システムキッチン、バス・トイレ別、追い焚き、室内洗濯機置き場、フローリング、バルコニー、分譲賃貸、即入居可、2人入居相談、CATV、オートロック、エレベータ、都市ガス | ||
| 備考 | リロサポ加入料1500円(月額) 駐車場登録料1台(利用時のみ)11000円。喫煙不可。退去時クリーニング費用負担有。6ヶ月未満の解約は違約金0.5ヶ月。 | ||
| 周辺施設 |
コンビニ距離301m、スーパー距離288m、病院距離717m |
||
| 物件番号 | 940079 | 取引態様 | 仲介 |
| 情報更新日 | 2026年01月24日 | ||
| 物件番号 | |||
敷金・礼金・家賃・入居時期時期など、何でもご相談ください!
2024年12月新規オープン!南浦和駅東口から徒歩1分♪
ハウス・トゥ・ハウス南浦和店で元気にお待ちしております!







