ステージファースト目白706 7階 | 1K | 8.5万円
お車でご案内いたします。お気軽にお問い合わせください。
| 賃料 | 8.5万円 | 管理費・共益費 | 1万円 |
|---|---|---|---|
| 敷金/礼金 | 1ヶ月 / 1ヶ月 | 専有面積 | 21.44m² |
| 間取り | 1K | 階建 | 7階/14階建 |
ステージファースト目白706の詳細
| 物件種別 | マンション | ||
|---|---|---|---|
| 賃料 | 8.5万円 | 管理費・共益費 | 1万円 |
| 敷金/保証金 | 1ヶ月 / - | 礼金/償却・敷引 | 1ヶ月 / 1ヶ月(退去時) |
| 更新料 | 1ヶ月 | ||
| その他費用 |
契約事務手数料:16,500円 鍵交換費用:33,000円 |
||
| 所在地 | 東京都豊島区雑司が谷3丁目3-3 | ||
| 交通 | |||
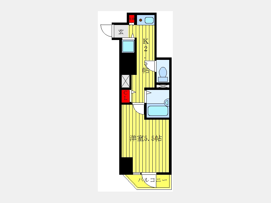
| 間取り | 1K | 間取り内訳 |
洋室 1 室 |
| 専有面積 | 21.44m² | バルコニー面積 | |
| 築年月(築年数) | 1998年11月(築27年) | 方位 | 東 |
| 建物構造 | SRC(鉄骨鉄筋コンクリート) | 所在階/階建 | 7階/14階建 |
| 総戸数 | - | 駐車場 | |
| 保険料 | 要 | 契約期間 | 2年間 |
| 現況(予定年月) | 2026年04月中旬 | ||
| 管理 | |||
| 設備・条件 | 2階以上、システムキッチン、バス・トイレ別、室内洗濯機置き場、エアコン、バルコニー、保証人不要、オートロック、TVドアホン、宅配ボックス、エレベータ、都市ガス | ||
| 備考 | MEIKOライフサポート倶楽部3300円(月額) ◆1年未満の解約時は総賃料1ヶ月分の違約金あり ◆解約予告2か月前 ◆更新事務手数料0.55ヶ月分 ◆退去時償却1か月分 | ||
| 周辺施設 |
コンビニ距離246m、スーパー距離298m、病院距離849m |
||
| 物件番号 | 981767 | 取引態様 | 仲介 |
| 情報更新日 | 2026年03月13日 | ||
| 物件番号 | |||
敷金・礼金・家賃・入居時期時期など、何でもご相談ください!
JR山手線・巣鴨駅から徒歩1分!
ハウス・トゥ・ハウス巣鴨店で元気にお待ちしております!







