アートイン巣鴨5F 5階 | 1K | 7万円
お車でご案内いたします。お気軽にお問い合わせください。
| 賃料 | 7万円 | 管理費・共益費 | 0.5万円 |
|---|---|---|---|
| 敷金/礼金 | 1ヶ月 / 1ヶ月 | 専有面積 | 18.37m² |
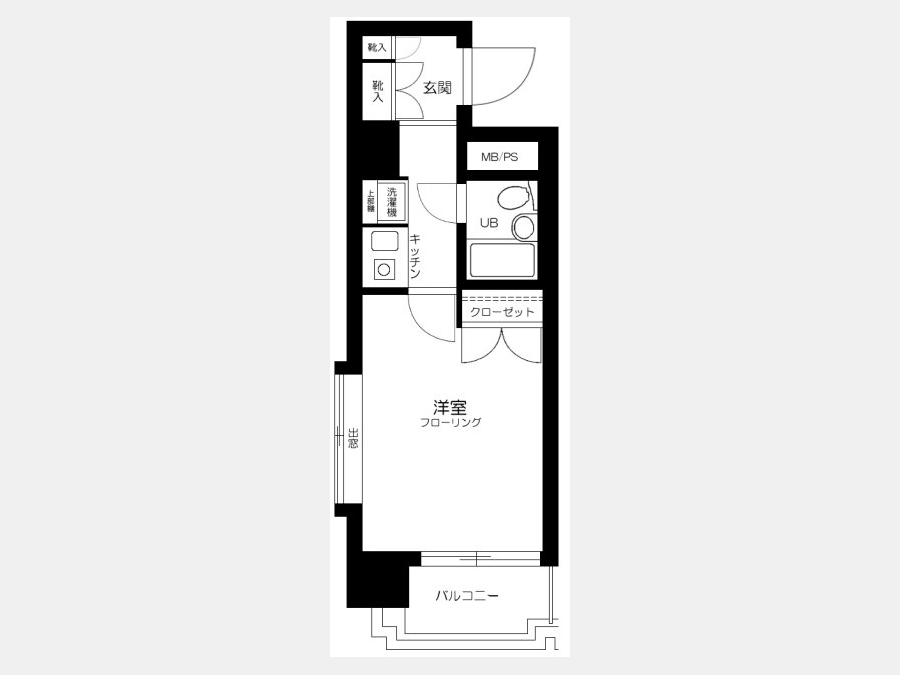
| 間取り | 1K | 階建 | 5階/7階建 |
アートイン巣鴨5Fの詳細
| 物件種別 | マンション | ||
|---|---|---|---|
| 賃料 | 7万円 | 管理費・共益費 | 0.5万円 |
| 敷金/保証金 | 1ヶ月 / - | 礼金/償却・敷引 | 1ヶ月 / - |
| 更新料 | 1ヶ月 | ||
| その他費用 |
入居者サポート料:22,000円 鍵交換費用:18,700円 |
||
| 所在地 | 東京都豊島区巣鴨1丁目40-5 | ||
| 交通 | |||
| 間取り | 1K | 間取り内訳 | |
| 専有面積 | 18.37m² | バルコニー面積 | |
| 築年月(築年数) | 1991年11月(築34年) | 方位 | 北西 |
| 建物構造 | RC(鉄筋コンクリート) | 所在階/階建 | 5階/7階建 |
| 総戸数 | 40戸 | 駐車場 | |
| 保険料 | 要 20,000円 2年 | 契約期間 | 2年間 |
| 現況(予定年月) | 2026年04月下旬 | ||
| 管理 | |||
| 設備・条件 | 2階以上、室内洗濯機置き場、フローリング、エアコン、バルコニー、分譲賃貸、保証人不要、オートロック、TVドアホン、エレベータ | ||
| 備考 | ■解約時敷金償却1ヶ月 | ||
| 周辺施設 |
コンビニ距離49m、スーパー距離379m、病院距離764m |
||
| 物件番号 | 1002656 | 取引態様 | 仲介 |
| 情報更新日 | 2026年03月11日 | ||
| 物件番号 | |||
敷金・礼金・家賃・入居時期時期など、何でもご相談ください!
歴史と情緒が薫る街・西日暮里でお部屋探し♪
ハウス・トゥ・ハウス西日暮里店で元気にお待ちしております!







