GENOVIA西高島平skygarden608 6階 | 1R | 9.5万円
お住まいをお探しなら、当社にお任せ下さい。当社はお客様に満足していただけるようしっかりとサポート致し
| 賃料 | 9.5万円 | 管理費・共益費 | 1.5万円 |
|---|---|---|---|
| 敷金/礼金 | なし / なし | 専有面積 | 25.54m² |
| 間取り | 1R | 階建 | 6階/10階建 |
360度パノラマ
GENOVIA西高島平skygarden608の詳細
| 物件種別 | マンション | ||
|---|---|---|---|
| 賃料 | 9.5万円 | 管理費・共益費 | 1.5万円 |
| 敷金/保証金 | なし / - | 礼金/償却・敷引 | なし / - |
| 更新料 | 1ヶ月 | ||
| その他費用 |
退去時ルームクリーニング代:38,500円 エアコン清掃費1基辺り:15,000円 鍵交換費用:22,000円 |
||
| 所在地 | 東京都板橋区三園1丁目48-20 | ||
| 交通 | |||
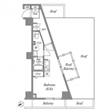
| 間取り | 1R | 間取り内訳 |
洋室 8.8 畳 |
| 専有面積 | 25.54m² | バルコニー面積 | |
| 築年月(築年数) | 2021年07月(築4年) | 方位 | 北西 |
| 建物構造 | RC(鉄筋コンクリート) | 所在階/階建 | 6階/10階建 |
| 総戸数 | 57戸 | 駐車場 | |
| 保険料 | 要 18,000円 2年 | 契約期間 | 2年間 |
| 現況(予定年月) | 2026年03月下旬 | ||
| 管理 | |||
| 設備・条件 | 2階以上、角部屋、システムキッチン、バス・トイレ別、温水洗浄便座、浴室乾燥機、室内洗濯機置き場、フローリング、エアコン、バルコニー、礼金なし、敷金なし、ペット相談、360°パノラマ有り、インターネット対応、BSアンテナ、CSアンテナ、オートロック、TVドアホン、防犯カメラ、宅配ボックス、エレベータ、都市ガス | ||
| 備考 | ペット相談可:犬・猫あわせて2匹まで。体重15キロまで。※敷金1ヶ月積み増し、退去時償却。 1年未満解約違約金:総賃料2ヶ月分、2年未満解約違約金:総賃料1ヶ月分。 解約予告2ヶ月前(日割)。 | ||
| 周辺施設 |
コンビニ距離221m、スーパー距離890m、病院距離2,493m |
||
| 物件番号 | 989243 | 取引態様 | 仲介 |
| 情報更新日 | 2026年02月11日 | ||
| 物件番号 | |||
敷金・礼金・家賃・入居時期時期など、何でもご相談ください!
都営三田線でのお部屋探しなら当店にお任せください!
ハウス・トゥ・ハウス志村坂上店で元気にお待ちしております!







