コムレジ赤羽 学生棟461 4階 | 1R | 7.3万円
礼金なし☆初期費用抑えたい方におすすめです☆
| 賃料 | 7.3万円 | 管理費・共益費 | 2.3万円 |
|---|---|---|---|
| 敷金/礼金 | なし / なし | 専有面積 | 15.13m² |
| 間取り | 1R | 階建 | 4階/8階建 |
コムレジ赤羽 学生棟461の詳細
| 物件種別 | マンション | ||
|---|---|---|---|
| 賃料 | 7.3万円 | 管理費・共益費 | 2.3万円 |
| 敷金/保証金 | なし / - | 礼金/償却・敷引 | なし / - |
| 更新料 | - | ||
| その他費用 |
入館料:150,000円 駐輪登録料:3,300円 鍵交換費用:22,000円 |
||
| 所在地 | 東京都北区赤羽南2丁目2-9 | ||
| 交通 |
JR京浜東北・根岸線「赤羽駅」 徒歩8分 |
||
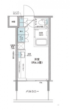
| 間取り | 1R | 間取り内訳 |
洋室 6.5 畳 |
| 専有面積 | 15.13m² | バルコニー面積 | |
| 築年月(築年数) | 2022年02月(築4年) | 方位 | 北 |
| 建物構造 | RC(鉄筋コンクリート) | 所在階/階建 | 4階/8階建 |
| 総戸数 | - | 駐車場 | 無 |
| 保険料 | 要 18,000円 2年 | 契約期間 | 2年間 |
| 現況(予定年月) | 2025年10月中旬 | ||
| 管理 | |||
| 設備・条件 | 2階以上、バス・トイレ別、温水洗浄便座、フローリング、エアコン、バルコニー、礼金なし、敷金なし、保証人不要、CATV、光ファイバー、オートロック、TVドアホン、防犯カメラ、宅配ボックス、駐輪場、エレベータ、都市ガス | ||
| 備考 | 電気代/月7000円(月額) 写真は反転タイプです/鍵発行手数料あり/ランドリー無料/顔認証付オートロック | ||
| 周辺施設 |
コンビニ距離312m、スーパー距離290m、病院距離154m |
||
| 物件番号 | 938816 | 取引態様 | 仲介 |
| 情報更新日 | 2026年02月08日 | ||
| 物件番号 | |||
敷金・礼金・家賃・入居時期時期など、何でもご相談ください!
歴史と情緒が薫る街・西日暮里でお部屋探し♪
ハウス・トゥ・ハウス西日暮里店で元気にお待ちしております!







